Offre spéciale

- 3 000€ sur vos frais de notaire

VEGA maison de plain-pied de 3 chambres avec un garage

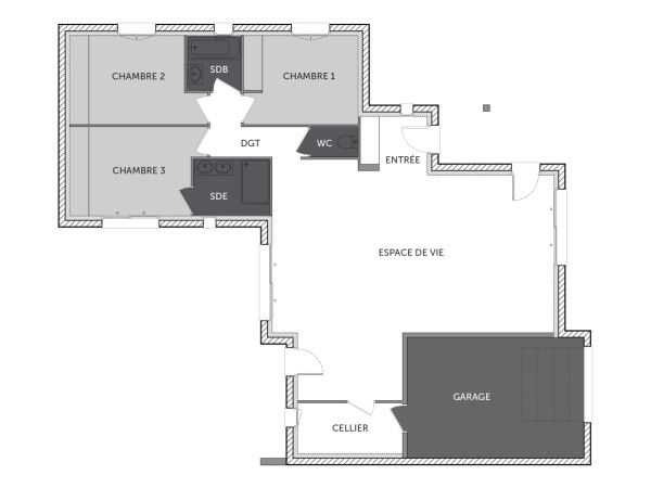
Cette maison en V offre tout le confort espéré. La pièce de vie de 51 m², très accueillante est ainsi le cœur du foyer donnant sur le jardin. Un garage intégré dans un des flancs de la maison vous permettra un accès direct au cellier. Deux chambres bénéficient d'un wc et d'une salle de bains commune, la suite parentale se compose d'une belle chambre avec sa salle d'eau privative.

Pour un confort optimal et conforme à la RE2025, cette maison dispose d'une PAC avec plancher chauffant et volets roulants électriques. A noter : le prix indiqué exclut les revêtements de sol des chambres, la cuisine aménagée, la peinture, la décoration, les raccordements, les frais de notaire, l’adaptation au sol et l'assurance dommages ouvrage.

104 m2

3 ch

2 salles de bain

1 garage

Nous contacter pour cette maison

Plan(s) de la maison VEGA

Plan (maison 197)

Les + de la maison VEGA

Mais au fait on parle, on parle, mais avez-vous pensé
à commencer votre projet ?

Visites virtuelles 360°

Découvrez nos visites virtuelles 360° HD et explorez l’intérieur de nos maisons modernes. Naviguez de pièce en pièce, appréciez les volumes, les aménagements et les finitions de chaque espace. Une expérience immersive qui vous permet d’imaginer votre future maison neuve, depuis chez vous.

Toutes les visites virtuelles
Visites virtuelles 360°
ME1785A_VEGA_Avant.png

Cette maison vous intéresse ?

Pour estimer le coût de construction de ce projet de maison, plus de renseignements ou prendre rendez-vous, remplissez le formulaire ci-dessous

Les champs marqués(*) sont obligatoires.