Offre spéciale

- 3 000€ sur vos frais de notaire

MONTIGNAC maison à étage de 4 chambres avec un garage

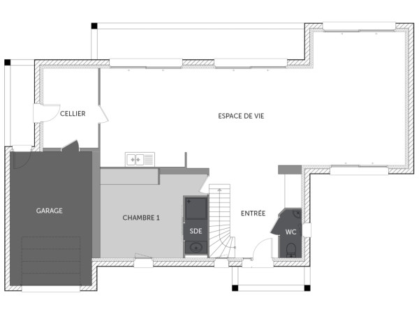
Design moderne & volumes optimisés ! Découvrez cette maison personnalisable, pensée pour conjuguer espace et luminosité. Avec 4 chambres, dont une suite parentale au rez-de-chaussée, et deux salles d’eau, chacun profite de son confort. Son vaste salon séjour de 42 m² ouvert sur une cuisine lumineuse crée un cadre de vie chaleureux et convivial.

Un agencement intelligent, un garage pratique et des finitions soignées… Imaginez, personnalisez et réalisez votre projet de vie !

Pour un confort optimal et conforme à la RE2025, cette maison dispose d'une PAC avec plancher chauffant et volets roulants électriques. A noter : le prix indiqué exclut les revêtements de sol des chambres, la cuisine aménagée, la peinture, la décoration, les raccordements, les frais de notaire, l’adaptation au sol et l'assurance dommages ouvrage.

150 m2

4 ch

2 salles de bain

1 garage

Nous contacter pour cette maison

Plan(s) de la maison MONTIGNAC

Plan (maison 55)
Plan (maison 55)

Les + de la maison MONTIGNAC

Mais au fait on parle, on parle, mais avez-vous pensé
à commencer votre projet ?

Visites virtuelles 360°

Découvrez nos visites virtuelles 360° HD et explorez l’intérieur de nos maisons modernes. Naviguez de pièce en pièce, appréciez les volumes, les aménagements et les finitions de chaque espace. Une expérience immersive qui vous permet d’imaginer votre future maison neuve, depuis chez vous.

Toutes les visites virtuelles
Visites virtuelles 360°
ME1753A_Montignac_Arriere.jpg

Cette maison vous intéresse ?

Pour estimer le coût de construction de ce projet de maison, plus de renseignements ou prendre rendez-vous, remplissez le formulaire ci-dessous

Les champs marqués(*) sont obligatoires.