Offre spéciale

- 3 000€ sur vos frais de notaire

TESSEN maison à étage de 3 chambres avec un garage

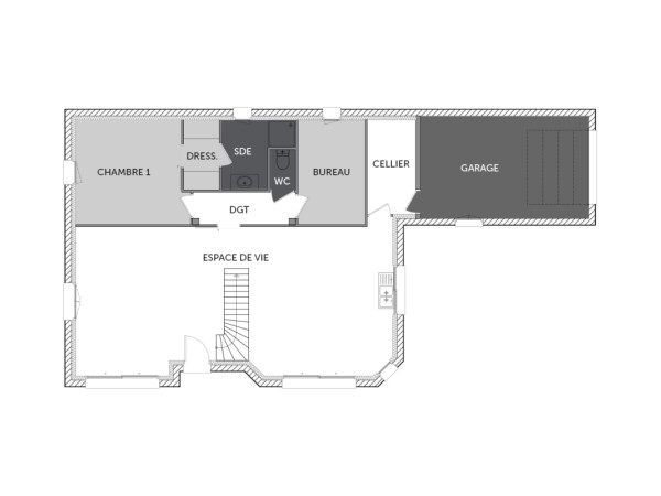
Une maison à votre image, prête à évoluer ! Ici, tout est pensé pour s’adapter à vos envies. Un vaste espace de vie lumineux, une suite parentale avec dressing et salle d’eau, un bureau inspirant et un cellier pratique pour un quotidien fluide et organisé.

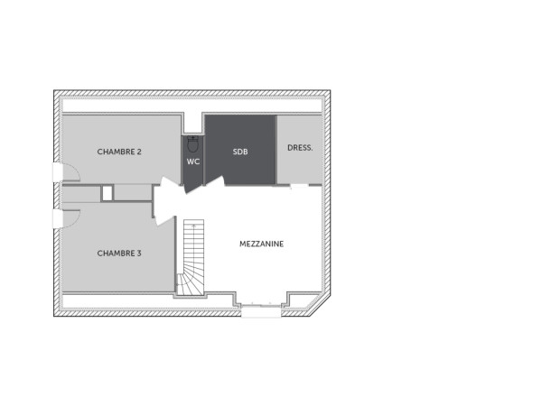
À l’étage, deux belles chambres et une grande mezzanine, idéale pour un coin détente, une salle de jeux ou un espace télétravail. Personnalisez chaque mètre carré et créez un intérieur qui vous ressemble !

Ici, tout est modulable… et si vous lui donniez votre touche ?

 

Pour un confort optimal et conforme à la RE2025, cette maison dispose d'une PAC avec plancher chauffant et volets roulants électriques. A noter : le prix indiqué exclut les revêtements de sol des chambres, la cuisine aménagée, la peinture, la décoration, les raccordements, les frais de notaire, l’adaptation au sol et l'assurance dommages ouvrage.

136 m2

3 ch

2 salles de bain

1 garage

Nous contacter pour cette maison

Plan(s) de la maison TESSEN

Plan (maison 184)
Plan (maison 184)

Les + de la maison TESSEN

Mais au fait on parle, on parle, mais avez-vous pensé
à commencer votre projet ?

Visites virtuelles 360°

Découvrez nos visites virtuelles 360° HD et explorez l’intérieur de nos maisons modernes. Naviguez de pièce en pièce, appréciez les volumes, les aménagements et les finitions de chaque espace. Une expérience immersive qui vous permet d’imaginer votre future maison neuve, depuis chez vous.

Toutes les visites virtuelles
Visites virtuelles 360°
Maison

Cette maison vous intéresse ?

Pour estimer le coût de construction de ce projet de maison, plus de renseignements ou prendre rendez-vous, remplissez le formulaire ci-dessous

Les champs marqués(*) sont obligatoires.