Offre spéciale

- 3 000€ sur vos frais de notaire

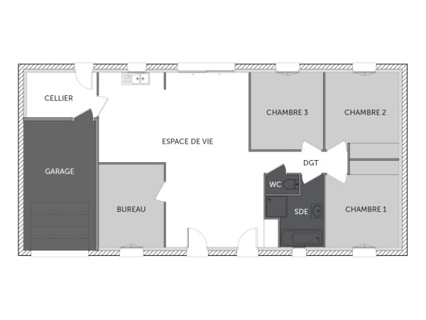
PARCAY maison de plain-pied de 4 chambres avec un garage

Une maison qui coche toutes les cases ! Avec son agencement clair et fonctionnel, ce modèle est un vrai coup de cœur pour les familles en quête de simplicité efficace. L’espace de vie traversant invite à la lumière naturelle, tandis que les 3 chambres sont idéalement réparties pour préserver l’intimité de chacun. Un bureau discret s’adapte à tous les projets, qu’ils soient pro ou perso. Salle de bain, cellier, WC séparé et garage attenant : chaque détail a été pensé pour vous simplifier la vie au quotidien. Une maison qui s’adapte à vos besoins, à votre rythme, et à vos envies d’évolution.

Pour un confort optimal et conforme à la RE2025, cette maison dispose d'une PAC avec plancher chauffant et volets roulants électriques. A noter : le prix indiqué exclut les revêtements de sol des chambres, la cuisine aménagée, la peinture, la décoration, les raccordements, les frais de notaire, l’adaptation au sol et l'assurance dommages ouvrage.

95 m2

4 ch

1 salle de bain

1 garage

Nous contacter pour cette maison

Plan(s) de la maison PARCAY

Plan (maison 34)

Les + de la maison PARCAY

Mais au fait on parle, on parle, mais avez-vous pensé
à commencer votre projet ?

Visites virtuelles 360°

Découvrez nos visites virtuelles 360° HD et explorez l’intérieur de nos maisons modernes. Naviguez de pièce en pièce, appréciez les volumes, les aménagements et les finitions de chaque espace. Une expérience immersive qui vous permet d’imaginer votre future maison neuve, depuis chez vous.

Toutes les visites virtuelles
Visites virtuelles 360°
ME1764T_PARCAY_Avant.jpg

Cette maison vous intéresse ?

Pour estimer le coût de construction de ce projet de maison, plus de renseignements ou prendre rendez-vous, remplissez le formulaire ci-dessous

Les champs marqués(*) sont obligatoires.