Offre spéciale

- 3 000€ sur vos frais de notaire

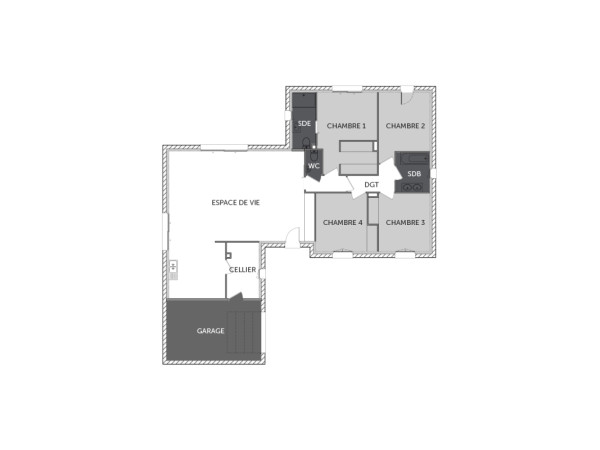
PALMA maison de plain-pied de 4 chambres avec un garage

Cette maison séduit au premier regard par son architecture en L, qui structure l’espace avec fluidité et caractère. L’espace de vie s’ouvre naturellement sur l’extérieur, baigné de lumière et prêt à accueillir vos moments de partage. Le coin nuit, bien séparé, propose 4 chambres confortables et deux salles d’eau pour une vie de famille tout en douceur. Le cellier attenant à la cuisine et le garage intégré ajoutent une touche de praticité au quotidien. Un modèle pensé pour s’adapter à toutes les envies, avec un vrai potentiel de personnalisation. 

Pour un confort optimal et conforme à la RE2025, cette maison dispose d'une PAC avec plancher chauffant et volets roulants électriques. A noter : le prix indiqué exclut les revêtements de sol des chambres, la cuisine aménagée, la peinture, la décoration, les raccordements, les frais de notaire, l’adaptation au sol et l'assurance dommages ouvrage.

126 m2

4 ch

2 salles de bain

1 garage

Nous contacter pour cette maison

Plan(s) de la maison PALMA

Plan (maison 209)

Les + de la maison PALMA

Mais au fait on parle, on parle, mais avez-vous pensé
à commencer votre projet ?

Visites virtuelles 360°

Découvrez nos visites virtuelles 360° HD et explorez l’intérieur de nos maisons modernes. Naviguez de pièce en pièce, appréciez les volumes, les aménagements et les finitions de chaque espace. Une expérience immersive qui vous permet d’imaginer votre future maison neuve, depuis chez vous.

Toutes les visites virtuelles
Visites virtuelles 360°
ME1763A_PALMA_Avant.jpeg

Cette maison vous intéresse ?

Pour estimer le coût de construction de ce projet de maison, plus de renseignements ou prendre rendez-vous, remplissez le formulaire ci-dessous

Les champs marqués(*) sont obligatoires.