Offre spéciale

- 3 000€ sur vos frais de notaire

SINGAPOUR maison de plain-pied de 3 chambres avec un garage

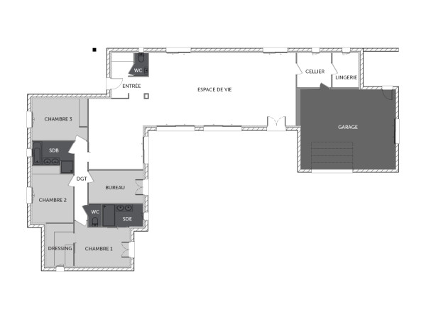
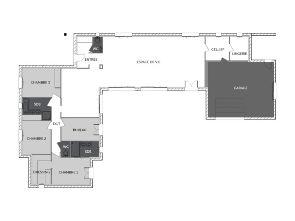
Charmante maison de plain-pied d'une surface habitable de plus de 160 m² : Côté jour, le plan se compose d’une entrée avec son vestibule, d’un très bel espace de vie lumineux de plus de 77 m² avec coin cuisine, d’une lingerie ainsi que d’un cellier communiquant vers le grand garage et son atelier. Côté nuit, le plan propose un bureau, deux chambres et une salle-de-bain ainsi qu’une suite parentale avec salle d'eau privative.

Pour un confort optimal et conforme à la RE2025, cette maison dispose d'une PAC avec plancher chauffant et volets roulants électriques. A noter : le prix indiqué exclut les revêtements de sol des chambres, la cuisine aménagée, la peinture, la décoration, les raccordements, les frais de notaire, l’adaptation au sol et l'assurance dommages ouvrage. (Piscine non contractuelle, non comprise dans le prix)

164 m2

3 ch

2 salles de bain

1 garage

Nous contacter pour cette maison

Plan(s) de la maison SINGAPOUR

Plan (maison 41)

Les + de la maison SINGAPOUR

Mais au fait on parle, on parle, mais avez-vous pensé
à commencer votre projet ?

Visites virtuelles 360°

Découvrez nos visites virtuelles 360° HD et explorez l’intérieur de nos maisons modernes. Naviguez de pièce en pièce, appréciez les volumes, les aménagements et les finitions de chaque espace. Une expérience immersive qui vous permet d’imaginer votre future maison neuve, depuis chez vous.

Toutes les visites virtuelles
Visites virtuelles 360°
ME1781C_SINGAPOUR_Arriere.jpg

Cette maison vous intéresse ?

Pour estimer le coût de construction de ce projet de maison, plus de renseignements ou prendre rendez-vous, remplissez le formulaire ci-dessous

Les champs marqués(*) sont obligatoires.