BOREALE maison de plain-pied de 4 chambres avec un garage

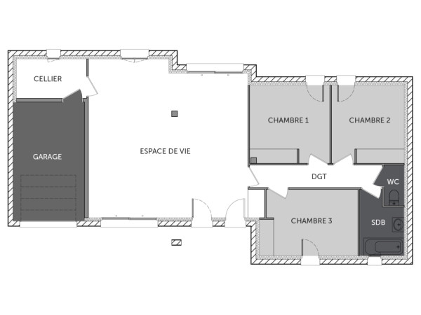
Un équilibre parfait entre élégance et fonctionnalité !  Cette maison est conçue pour allier confort, modernité et espaces bien pensés. Un vaste espace de vie de plus de 43 m², baigné de lumière, invite à la convivialité, tandis que les trois chambres spacieuses assurent calme et intimité.

Son garage attenant et son cellier astucieux complètent un agencement pensé pour un quotidien fluide et organisé. Moderne, fonctionnelle et évolutive, elle s’adapte à votre mode de vie et à vos envies.

 Un cadre de vie idéal pour ceux qui veulent conjuguer confort et raffinement… Prêts à vous y projeter ? 

 

Pour un confort optimal et conforme à la RE2025, cette maison dispose d’une PAC avec plancher chauffant et volets roulants électriques.  À noter : Le prix indiqué exclut les revêtements de sol des chambres, la cuisine aménagée, la peinture, la décoration, les raccordements, les frais de notaire et l’assurance dommages-ouvrage

93 m2

4 ch

1 salle de bain

1 garage

Nous contacter pour cette maison

Plan(s) de la maison BOREALE

Plan (maison 158)

Les + de la maison BOREALE

Mais au fait on parle, on parle, mais avez-vous pensé
à commencer votre projet ?

Visites virtuelles 360°

Découvrez nos visites virtuelles 360° HD et explorez l’intérieur de nos maisons modernes. Naviguez de pièce en pièce, appréciez les volumes, les aménagements et les finitions de chaque espace. Une expérience immersive qui vous permet d’imaginer votre future maison neuve, depuis chez vous.

Toutes les visites virtuelles
Visites virtuelles 360°
Maison

Cette maison vous intéresse ?

Pour estimer le coût de construction de ce projet de maison, plus de renseignements ou prendre rendez-vous, remplissez le formulaire ci-dessous

Les champs marqués(*) sont obligatoires.