Offre spéciale

- 3 000€ sur vos frais de notaire

CHICAGO maison à étage de 4 chambres avec un garage

Une architecture audacieuse, un espace de vie spectaculaire !

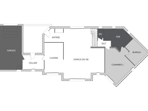
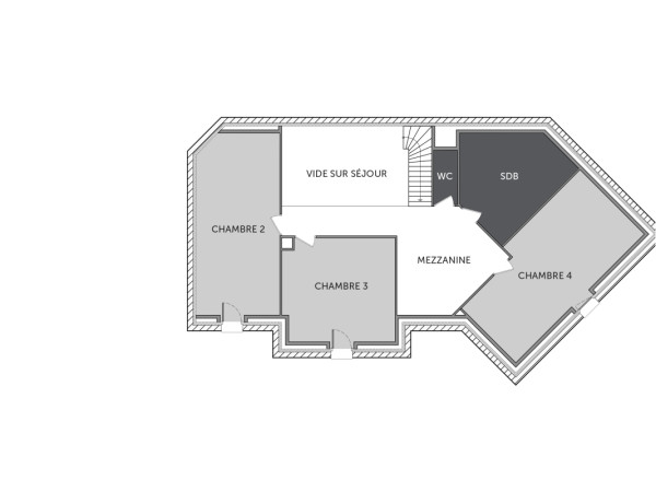
Quand modernité rime avec grandeur ! Une façade élégante et affirmée, un intérieur baigné de lumière avec un séjour cathédrale époustouflant, et des volumes pensés pour allier esthétisme et confort. Au rez-de-chaussée, une suite parentale avec dressing et salle de bain, un vaste espace de vie de plus de 50 m², et une cuisine spacieuse pour des instants de convivialité. À l’étage, trois chambres généreuses, une mezzanine ouverte sur le séjour, et une salle d’eau élégante créent un univers harmonieux. Sans oublier un grand garage et un cellier attenant, pour allier praticité et modernité.

Pour un confort optimal et conforme à la RE2025, cette maison dispose d’une PAC avec plancher chauffant, radiateurs à l’étage et volets roulants électriques.   À noter : Le prix indiqué exclut les revêtements de sol des chambres, la cuisine aménagée, la peinture, la décoration, les raccordements, les frais de notaire et l’assurance dommages-ouvrage. (Piscine non contractuelle, non comprise dans le prix)

Un concept unique, personnalisable à l’infini – et si vous écriviez la suite ?

191 m2

4 ch

2 salles de bain

1 garage

Nous contacter pour cette maison

Plan(s) de la maison CHICAGO

Plan (maison 36)
Plan (maison 36)

Les + de la maison CHICAGO

Mais au fait on parle, on parle, mais avez-vous pensé
à commencer votre projet ?

Visites virtuelles 360°

Découvrez nos visites virtuelles 360° HD et explorez l’intérieur de nos maisons modernes. Naviguez de pièce en pièce, appréciez les volumes, les aménagements et les finitions de chaque espace. Une expérience immersive qui vous permet d’imaginer votre future maison neuve, depuis chez vous.

Toutes les visites virtuelles
Visites virtuelles 360°
Maison

Cette maison vous intéresse ?

Pour estimer le coût de construction de ce projet de maison, plus de renseignements ou prendre rendez-vous, remplissez le formulaire ci-dessous

Les champs marqués(*) sont obligatoires.