Offre spéciale

- 3 000€ sur vos frais de notaire

RIO maison de plain-pied de 4 chambres sans garage

Ce grand plain-pied aux traits contemporains, tourné vers le jardin, vous invite au calme et à la méditation. La grande cuisine vous permettra de vous livrer aux joies des arts culinaires et le salon séjour vous séduira par son volume et sa luminosité. Cette maison accueillera confortablement votre famille et vos amis apprécieront, à coup sûr, d'y poser leurs valises le temps d'un agréable week-end. Les pièces annexes ne sont pas en reste : un double préau abritera vos véhicules en hiver et un local à vélos a également été pensé ! Cette maison vous attend, à vous d'inventer la vie qui va avec !

Pour un confort optimal et conforme à la RE2025, cette maison dispose d'une PAC avec plancher chauffant et volets roulants électriques. A noter : le prix indiqué exclut les revêtements de sol des chambres, la cuisine aménagée, la peinture, la décoration, les raccordements, les frais de notaire, l’adaptation au sol et l'assurance dommages ouvrage. (Piscine non contractuelle, non comprise dans le prix)

148 m2

4 ch

2 salles de bain

Nous contacter pour cette maison

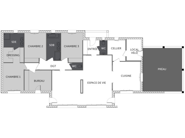
Plan(s) de la maison RIO

Plan (maison 40)

Les + de la maison RIO

Mais au fait on parle, on parle, mais avez-vous pensé
à commencer votre projet ?

Visites virtuelles 360°

Découvrez nos visites virtuelles 360° HD et explorez l’intérieur de nos maisons modernes. Naviguez de pièce en pièce, appréciez les volumes, les aménagements et les finitions de chaque espace. Une expérience immersive qui vous permet d’imaginer votre future maison neuve, depuis chez vous.

Toutes les visites virtuelles
Visites virtuelles 360°
Maison

Cette maison vous intéresse ?

Pour estimer le coût de construction de ce projet de maison, plus de renseignements ou prendre rendez-vous, remplissez le formulaire ci-dessous

Les champs marqués(*) sont obligatoires.