Offre spéciale

- 3 000€ sur vos frais de notaire

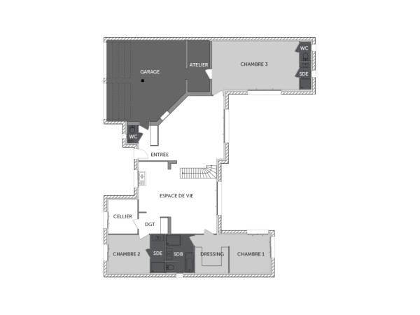
ALLONNES maison à étage de 4 chambres avec deux garages

Maison contemporaine spacieuse et lumineuse – à personnaliser selon vos envies ! Laissez-vous séduire par cette maison moderne aux volumes généreux, pensée pour allier confort et fonctionnalité. Avec 3 chambres, une suite parentale avec dressing et salle d’eau, un espace de vie spacieux, une cuisine ouverte, et même une salle de jeux, chaque espace est conçu pour s’adapter à votre mode de vie. Une architecture élégante et des finitions personnalisables pour un projet à votre image !

Pour un confort optimal et conforme à la RE2025, cette maison dispose d'une PAC avec plancher chauffant et volets roulants électriques. A noter : le prix indiqué exclut les revêtements de sol des chambres, la cuisine aménagée, la peinture, la décoration, les raccordements, les frais de notaire, l’adaptation au sol et l'assurance dommages ouvrage. (Piscine non contractuelle, non comprise dans le prix)

Contactez nous dès aujourd’hui pour concrétiser votre projet et façonner votre futur chez-vous !

183 m2

4 ch

4 salles de bain

2 garages

Nous contacter pour cette maison

Plan(s) de la maison ALLONNES

Plan (maison 2)
Plan (maison 2)

Les + de la maison ALLONNES

Mais au fait on parle, on parle, mais avez-vous pensé
à commencer votre projet ?

Visites virtuelles 360°

Découvrez nos visites virtuelles 360° HD et explorez l’intérieur de nos maisons modernes. Naviguez de pièce en pièce, appréciez les volumes, les aménagements et les finitions de chaque espace. Une expérience immersive qui vous permet d’imaginer votre future maison neuve, depuis chez vous.

Toutes les visites virtuelles
Visites virtuelles 360°
ME2001_ALLONNES_Arriere.jpg

Cette maison vous intéresse ?

Pour estimer le coût de construction de ce projet de maison, plus de renseignements ou prendre rendez-vous, remplissez le formulaire ci-dessous

Les champs marqués(*) sont obligatoires.