Offre spéciale

- 3 000€ sur vos frais de notaire

LIMA maison de plain-pied de 4 chambres avec un garage

Un agencement original pour un confort sur mesure !

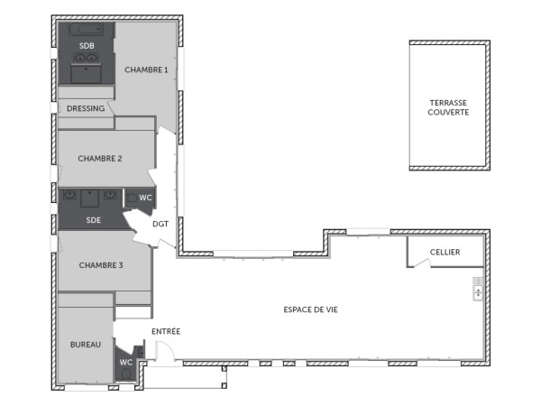
Vous cherchez une maison qui sort des sentiers battus ? Ce modèle séduit par sa configuration en L, pensée pour offrir à la fois intimité et convivialité. L’espace de vie, généreusement ouvert, s’étend vers une terrasse couverte parfaite pour les soirées d’été. Le coin nuit réunit trois chambres, dont une suite parentale avec dressing et salle de bain privative, séparée des deux autres pour plus de tranquillité. Un bureau en façade, deux WC, un cellier bien placé : tout est là pour conjuguer vie familiale, télétravail et sérénité. Une maison qui a du caractère, à moduler selon vos envies.

Pour un confort optimal et conforme à la RE2025, cette maison dispose d'une PAC avec plancher chauffant et volets roulants électriques. A noter : le prix indiqué exclut les revêtements de sol des chambres, la cuisine aménagée, la peinture, la décoration, les raccordements, les frais de notaire, l’adaptation au sol et l'assurance dommages ouvrage. (Piscine non contractuelle, non comprise dans le prix)

181 m2

4 ch

2 salles de bain

1 garage

Nous contacter pour cette maison

Plan(s) de la maison LIMA

Plan (maison 5)

Les + de la maison LIMA

Mais au fait on parle, on parle, mais avez-vous pensé
à commencer votre projet ?

Visites virtuelles 360°

Découvrez nos visites virtuelles 360° HD et explorez l’intérieur de nos maisons modernes. Naviguez de pièce en pièce, appréciez les volumes, les aménagements et les finitions de chaque espace. Une expérience immersive qui vous permet d’imaginer votre future maison neuve, depuis chez vous.

Toutes les visites virtuelles
Visites virtuelles 360°
TS1715ME_LIMA_Arriere.jpg

Cette maison vous intéresse ?

Pour estimer le coût de construction de ce projet de maison, plus de renseignements ou prendre rendez-vous, remplissez le formulaire ci-dessous

Les champs marqués(*) sont obligatoires.