Offre spéciale

- 3 000€ sur vos frais de notaire

MEXICO maison à étage de 4 chambres avec deux garages

Architecture moderne & volumes généreux ! Laissez libre cours à vos envies avec cette maison personnalisable, où chaque espace est pensé pour conjuguer confort et design. Un vaste salon-séjour-cuisine de 48 m², baigné de lumière, devient le cœur de la maison. Une suite parentale avec dressing et salle d’eau au rez-de-chaussée vous garantit une intimité préservée. À l’étage, deux chambres, un bureau et une salle d’eau offrent un espace cosy pour toute la famille.

Garage spacieux, lingerie fonctionnelle, et un studio indépendant complètent ce cocon à votre image. Imaginez, personnalisez, et construisez votre projet de vie !

Pour un confort optimal et conforme à la RE2025, cette maison dispose d’une PAC avec plancher chauffant, radiateurs à l’étage et volets roulants électriques.  À noter : Le prix indiqué exclut les revêtements de sol des chambres, la cuisine aménagée, la peinture, la décoration, les raccordements, les frais de notaire et l’assurance dommages-ouvrage.

Imaginez, personnalisez, et construisez votre projet de vie !

148 m2

4 ch

2 salles de bain

2 garages

Nous contacter pour cette maison

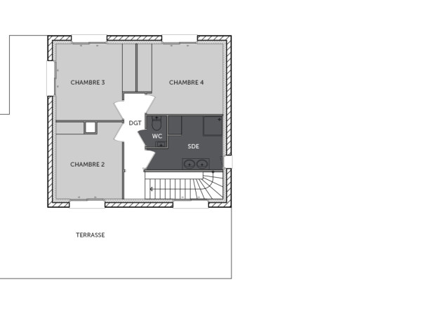
Plan(s) de la maison MEXICO

Plan (maison 11)
Plan (maison 11)

Les + de la maison MEXICO

Mais au fait on parle, on parle, mais avez-vous pensé
à commencer votre projet ?

Visites virtuelles 360°

Découvrez nos visites virtuelles 360° HD et explorez l’intérieur de nos maisons modernes. Naviguez de pièce en pièce, appréciez les volumes, les aménagements et les finitions de chaque espace. Une expérience immersive qui vous permet d’imaginer votre future maison neuve, depuis chez vous.

Toutes les visites virtuelles
Visites virtuelles 360°
MC1643 - Stephanoise_Avant.jpg

Cette maison vous intéresse ?

Pour estimer le coût de construction de ce projet de maison, plus de renseignements ou prendre rendez-vous, remplissez le formulaire ci-dessous

Les champs marqués(*) sont obligatoires.