Offre spéciale

- 3 000€ sur vos frais de notaire

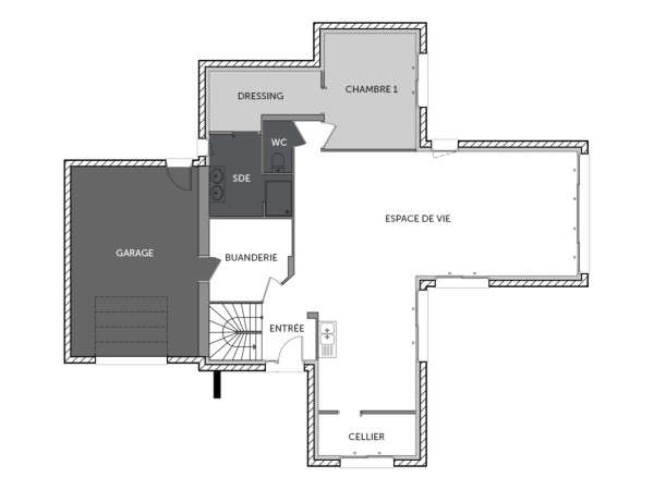
TOKYO maison à étage de 4 chambres avec un garage

Un concept unique, une maison qui vous ressemble ! Pourquoi choisir entre design et modularité quand vous pouvez avoir les deux ? Ici, chaque espace est un terrain d’expression, prêt à s’adapter à votre mode de vie. Un espace de vie audacieux et lumineux, une suite parentale avec dressing et salle d’eau, un cellier malin et une buanderie pour un quotidien sans contrainte. À l’étage, trois chambres et une mezzanine deviennent un univers à créer : bureau, salle de jeux, coin lecture… tout est possible !

Imaginez un lieu unique, façonné selon vos envies… Prêts à lui donner vie ? 

Votre projet commence ici, laissez libre cours à votre imagination !

 

 

Pour un confort optimal et conforme à la RE2025, cette maison dispose d'une PAC avec plancher chauffant et volets roulants électriques. A noter : le prix indiqué exclut les revêtements de sol des chambres, la cuisine aménagée, la peinture, la décoration, les raccordements, les frais de notaire, l’adaptation au sol et l'assurance dommages ouvrage. (Piscine non contractuelle, non comprise dans le prix)

148 m2

4 ch

2 salles de bain

1 garage

Nous contacter pour cette maison

Plan(s) de la maison TOKYO

Plan (maison 16)
Plan (maison 16)

Les + de la maison TOKYO

Mais au fait on parle, on parle, mais avez-vous pensé
à commencer votre projet ?

Visites virtuelles 360°

Découvrez nos visites virtuelles 360° HD et explorez l’intérieur de nos maisons modernes. Naviguez de pièce en pièce, appréciez les volumes, les aménagements et les finitions de chaque espace. Une expérience immersive qui vous permet d’imaginer votre future maison neuve, depuis chez vous.

Toutes les visites virtuelles
Visites virtuelles 360°
MC1809 - Agathe - Arriere.jpg

Cette maison vous intéresse ?

Pour estimer le coût de construction de ce projet de maison, plus de renseignements ou prendre rendez-vous, remplissez le formulaire ci-dessous

Les champs marqués(*) sont obligatoires.