Offre spéciale

- 3 000€ sur vos frais de notaire

LONDRES maison à étage de 3 chambres avec un garage

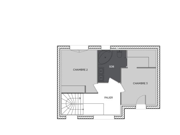
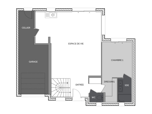
Maison moderne et élégante offrant au rez-de-chaussée une entrée avec placard et WC séparé. Une pièce de vie lumineuse de 47 m², une chambre de plus de 14 m² avec salle d'eau privative et un cellier donnant sur un garage de 15 m. A l’étage, une mezzanine pouvant accueillir un bureau distribue 2 chambres de 11 et 13 m² dont une avec dressing privatif et donnant accès à une terrasse privative, une salle de bains de 6 m² avec baignoire d’angle, double vasque et un WC.

Pour un confort optimal et conforme à la RE2025, cette maison dispose d'une PAC avec plancher chauffant et volets roulants électriques. A noter : le prix indiqué exclut les revêtements de sol des chambres, la cuisine aménagée, la peinture, la décoration, les raccordements, les frais de notaire, l’adaptation au sol et l'assurance dommages ouvrage.

107 m2

3 ch

2 salles de bain

1 garage

Nous contacter pour cette maison

Plan(s) de la maison LONDRES

Plan (maison 19)
Plan (maison 19)

Les + de la maison LONDRES

Mais au fait on parle, on parle, mais avez-vous pensé
à commencer votre projet ?

Visites virtuelles 360°

Découvrez nos visites virtuelles 360° HD et explorez l’intérieur de nos maisons modernes. Naviguez de pièce en pièce, appréciez les volumes, les aménagements et les finitions de chaque espace. Une expérience immersive qui vous permet d’imaginer votre future maison neuve, depuis chez vous.

Toutes les visites virtuelles
Visites virtuelles 360°
MC1811 - Opaline - Avant.jpg

Cette maison vous intéresse ?

Pour estimer le coût de construction de ce projet de maison, plus de renseignements ou prendre rendez-vous, remplissez le formulaire ci-dessous

Les champs marqués(*) sont obligatoires.