Offre spéciale

- 3 000€ sur vos frais de notaire

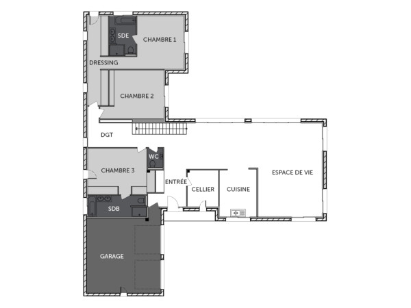
KARACHI maison à étage de 5 chambres avec un garage

Et si votre maison était aussi unique que vous ? Découvrez ce modèle à l’architecture audacieuse et lumineuse, conçu pour offrir un équilibre parfait entre design, confort et fonctionnalité. Avec ses 5 chambres, dont une suite parentale avec dressing et salle d’eau, chaque membre de la famille trouvera son espace. L’immense pièce de vie ouverte, baignée de lumière, invite à partager des moments chaleureux, tandis que la cuisine, pensée pour les passionnés comme les amateurs, deviendra le cœur de votre quotidien. Deux salles de bains, un garage intégré, un cellier malin, et surtout… une maison personnalisable selon vos envies ! Vous rêvez d’un bureau, d’un espace bien-être ou d’un dressing XXL ? Tout est possible.

Pour un confort optimal et conforme à la RE2025, cette maison dispose d'une PAC avec plancher chauffant et volets roulants électriques. A noter : le prix indiqué exclut les revêtements de sol des chambres, la cuisine aménagée, la peinture, la décoration, les raccordements, les frais de notaire, l’adaptation au sol et l'assurance dommages ouvrage. (Piscine non contractuelle, non comprise dans le prix) 

Laissez libre cours à votre imagination et parlons de votre futur chez-vous !

240 m2

5 ch

3 salles de bain

1 garage

Nous contacter pour cette maison

Plan(s) de la maison KARACHI

Plan (maison 22)
Plan (maison 22)

Les + de la maison KARACHI

Mais au fait on parle, on parle, mais avez-vous pensé
à commencer votre projet ?

Visites virtuelles 360°

Découvrez nos visites virtuelles 360° HD et explorez l’intérieur de nos maisons modernes. Naviguez de pièce en pièce, appréciez les volumes, les aménagements et les finitions de chaque espace. Une expérience immersive qui vous permet d’imaginer votre future maison neuve, depuis chez vous.

Toutes les visites virtuelles
Visites virtuelles 360°
TS1735ME_KARACHI_Arriere.jpg

Cette maison vous intéresse ?

Pour estimer le coût de construction de ce projet de maison, plus de renseignements ou prendre rendez-vous, remplissez le formulaire ci-dessous

Les champs marqués(*) sont obligatoires.