Offre spéciale

- 3 000€ sur vos frais de notaire

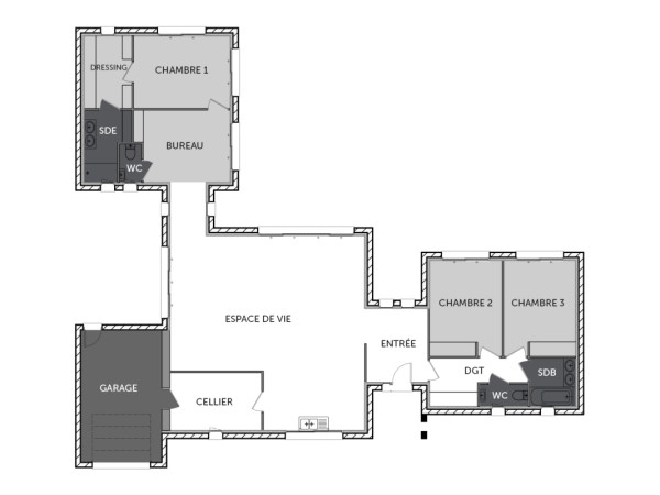
CARACAS maison de plain-pied de 4 chambres avec un garage

Une maison qui pense à tout, et surtout à vous ! Un vaste espace de vie de près de 57 m², baigné de lumière, où chaque moment devient un instant de partage. Une suite parentale avec dressing et salle d’eau, un bureau isolé pour travailler en toute sérénité, et deux chambres bien agencées pour préserver l’intimité de chacun. Un cellier astucieux, un garage fonctionnel et des rangements optimisés viennent parfaire cet intérieur conçu pour s’adapter à votre quotidien.

 Un cadre de vie idéal, modulable et à votre image… Prêts à vous y projeter ? 

 

Pour un confort optimal et conforme à la RE2025, cette maison dispose d'une PAC avec plancher chauffant et volets roulants électriques. A noter : le prix indiqué exclut les revêtements de sol des chambres, la cuisine aménagée, la peinture, la décoration, les raccordements, les frais de notaire, l’adaptation au sol et l'assurance dommages ouvrage. (Piscine non contractuelle, non comprise dans le prix)

147 m2

4 ch

2 salles de bain

1 garage

Nous contacter pour cette maison

Plan(s) de la maison CARACAS

Plan (maison 8)

Les + de la maison CARACAS

Mais au fait on parle, on parle, mais avez-vous pensé
à commencer votre projet ?

Visites virtuelles 360°

Découvrez nos visites virtuelles 360° HD et explorez l’intérieur de nos maisons modernes. Naviguez de pièce en pièce, appréciez les volumes, les aménagements et les finitions de chaque espace. Une expérience immersive qui vous permet d’imaginer votre future maison neuve, depuis chez vous.

Toutes les visites virtuelles
Visites virtuelles 360°
TS1905MC_SERPENTINE_Arriere.jpg

Cette maison vous intéresse ?

Pour estimer le coût de construction de ce projet de maison, plus de renseignements ou prendre rendez-vous, remplissez le formulaire ci-dessous

Les champs marqués(*) sont obligatoires.