VERACRUZ maison à étage de 3 chambres avec un garage

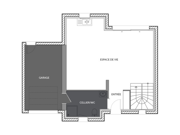
Un intérieur à réinventer, un projet à personnaliser !  Et si votre maison devenait le reflet de votre mode de vie ? Un espace de vie lumineux et ouvert, idéal pour partager des moments de convivialité, complété par un garage attenant et un cellier astucieux pour un quotidien fluide.

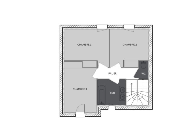
À l’étage, trois chambres et une salle de bain fonctionnelle offrent un espace nuit bien pensé, propice au confort et à l’intimité. Besoin d’un bureau, d’un dressing ou d’un coin lecture ? Ici, chaque pièce peut évoluer au gré de vos envies.

Une maison à façonner selon vos inspirations… Prêts à la personnaliser ?

 

Pour un confort optimal et conforme à la RE2025, cette maison dispose d’une PAC avec plancher chauffant, radiateurs à l’étage et volets roulants électriques.  À noter : Le prix indiqué exclut les revêtements de sol des chambres, la cuisine aménagée, la peinture, la décoration, les raccordements, les frais de notaire et l’assurance dommages-ouvrage

89 m2

3 ch

2 salles de bain

1 garage

Nous contacter pour cette maison

Plan(s) de la maison VERACRUZ

Plan (maison 17)
Plan (maison 17)

Les + de la maison VERACRUZ

Mais au fait on parle, on parle, mais avez-vous pensé
à commencer votre projet ?

Visites virtuelles 360°

Découvrez nos visites virtuelles 360° HD et explorez l’intérieur de nos maisons modernes. Naviguez de pièce en pièce, appréciez les volumes, les aménagements et les finitions de chaque espace. Une expérience immersive qui vous permet d’imaginer votre future maison neuve, depuis chez vous.

Toutes les visites virtuelles
Visites virtuelles 360°
MC1813 - Rubis - Avant.jpg

Cette maison vous intéresse ?

Pour estimer le coût de construction de ce projet de maison, plus de renseignements ou prendre rendez-vous, remplissez le formulaire ci-dessous

Les champs marqués(*) sont obligatoires.