Offre spéciale

- 3 000€ sur vos frais de notaire

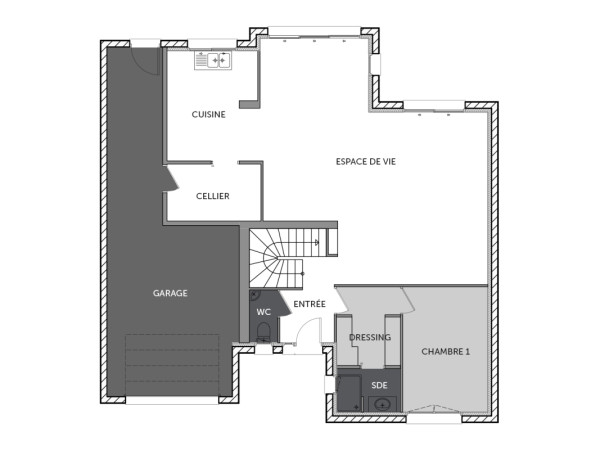
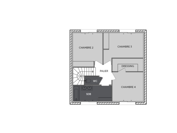
ALEXANDRIE maison à étage de 4 chambres avec un garage

Succombez au charme de cette maison moderne aux volumes généreux et baignés de lumière. Au rez-de-chaussée, une pièce de vie spacieuse de plus de 55 m², une suite parentale avec dressing et salle d’eau, ainsi qu’un cellier et un garage.  À l’étage, trois belles chambres, un dressing, une grande salle de bain et un WC indépendant pour un confort optimal. Un projet 100 % personnalisable selon vos envies ! Imaginez votre futur chez-vous dès maintenant !

Pour un confort optimal et conforme à la RE2025, cette maison dispose d'une PAC avec plancher chauffant et volets roulants électriques. A noter : le prix indiqué exclut les revêtements de sol des chambres, la cuisine aménagée, la peinture, la décoration, les raccordements, les frais de notaire, l’adaptation au sol et l'assurance dommages ouvrage.(Piscine non contractuelle, non comprise dans le prix)

Contactez nous dès aujourd’hui pour concrétiser votre projet et façonner votre futur chez-vous !

138 m2

4 ch

2 salles de bain

1 garage

Nous contacter pour cette maison

Plan(s) de la maison ALEXANDRIE

Plan (maison 23)
Plan (maison 23)

Les + de la maison ALEXANDRIE

Mais au fait on parle, on parle, mais avez-vous pensé
à commencer votre projet ?

Visites virtuelles 360°

Découvrez nos visites virtuelles 360° HD et explorez l’intérieur de nos maisons modernes. Naviguez de pièce en pièce, appréciez les volumes, les aménagements et les finitions de chaque espace. Une expérience immersive qui vous permet d’imaginer votre future maison neuve, depuis chez vous.

Toutes les visites virtuelles
Visites virtuelles 360°
MC1911 - Tourmaline - Arriere.jpg

Cette maison vous intéresse ?

Pour estimer le coût de construction de ce projet de maison, plus de renseignements ou prendre rendez-vous, remplissez le formulaire ci-dessous

Les champs marqués(*) sont obligatoires.