Offre spéciale

- 3 000€ sur vos frais de notaire

CALI maison à étage de 4 chambres avec un garage

Lignes modernes, volumes généreux – une maison qui casse les codes !  Ici, l’architecture contemporaine rencontre la fonctionnalité. Une façade élégante, un design audacieux, et des espaces pensés pour vivre pleinement. Profitez d’un vaste espace de vie de plus de 60 m², d’une suite parentale avec dressing et salle d’eau, d’une salle de sport privée, et à l’étage, trois chambres spacieuses et une salle de bain élégante. Et pour couronner le tout ? Un garage généreux et des finitions haut de gamme qui font toute la différence.

Pour un confort optimal et conforme à la RE2025, cette maison dispose d'une PAC avec plancher chauffant et volets roulants électriques. A noter : le prix indiqué exclut les revêtements de sol des chambres, la cuisine aménagée, la peinture, la décoration, les raccordements, les frais de notaire, l’adaptation au sol et l'assurance dommages ouvrage. (Piscine non contractuelle, non comprise dans le prix)

Un projet qui s’adapte à vos envies – à vous d’écrire la suite !

165 m2

4 ch

2 salles de bain

1 garage

Nous contacter pour cette maison

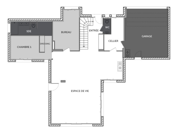
Plan(s) de la maison CALI

Plan (maison 1)
Plan (maison 1)

Les + de la maison CALI

Mais au fait on parle, on parle, mais avez-vous pensé
à commencer votre projet ?

Visites virtuelles 360°

Découvrez nos visites virtuelles 360° HD et explorez l’intérieur de nos maisons modernes. Naviguez de pièce en pièce, appréciez les volumes, les aménagements et les finitions de chaque espace. Une expérience immersive qui vous permet d’imaginer votre future maison neuve, depuis chez vous.

Toutes les visites virtuelles
Visites virtuelles 360°
TS2002ME_CALI_Avant.jpg

Cette maison vous intéresse ?

Pour estimer le coût de construction de ce projet de maison, plus de renseignements ou prendre rendez-vous, remplissez le formulaire ci-dessous

Les champs marqués(*) sont obligatoires.