Offre spéciale

- 3 000€ sur vos frais de notaire

NAPLES maison à étage de 2 chambres avec un garage

Un écrin de lumière à personnaliser ! Oubliez les compromis, ici chaque m² est pensé pour vous ! Un vaste espace de vie baigné de lumière, une circulation fluide et des volumes généreux à façonner selon vos envies. À l’étage, 2 grandes chambres et un dressing pour un confort absolu. Un garage et un cellier malin complètent cette maison à l’architecture élégante et contemporaine. Faites de ce projet le vôtre, imaginez le à votre image !

Pour un confort optimal et conforme à la RE2025, cette maison dispose d'une PAC avec plancher chauffant et volets roulants électriques. A noter : le prix indiqué exclut les revêtements de sol des chambres, la cuisine aménagée, la peinture, la décoration, les raccordements, les frais de notaire, l’adaptation au sol et l'assurance dommages ouvrage. (Piscine non contractuelle, non comprise dans le prix)

95 m2

2 ch

1 salle de bain

1 garage

Nous contacter pour cette maison

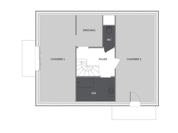
Plan(s) de la maison NAPLES

Plan (maison 6)
Plan (maison 6)

Les + de la maison NAPLES

Mais au fait on parle, on parle, mais avez-vous pensé
à commencer votre projet ?

Visites virtuelles 360°

Découvrez nos visites virtuelles 360° HD et explorez l’intérieur de nos maisons modernes. Naviguez de pièce en pièce, appréciez les volumes, les aménagements et les finitions de chaque espace. Une expérience immersive qui vous permet d’imaginer votre future maison neuve, depuis chez vous.

Toutes les visites virtuelles
Visites virtuelles 360°
MC2002ME_Naples_Arriere.jpg

Cette maison vous intéresse ?

Pour estimer le coût de construction de ce projet de maison, plus de renseignements ou prendre rendez-vous, remplissez le formulaire ci-dessous

Les champs marqués(*) sont obligatoires.