Offre spéciale

- 3 000€ sur vos frais de notaire

ARTHENAY maison à étage de 4 chambres avec un garage

Une maison qui s’adapte à vous – moderne, lumineuse et 100 % personnalisable ! Et si votre futur chez-vous était à votre image ? Avec 4 chambres, dont une suite parentale avec dressing et salle d’eau, un vaste espace de vie ouvert, et des volumes baignés de lumière, cette maison combine design et confort. L’étage offre trois belles chambres et une salle de bain familiale, parfait pour préserver l’intimité de chacun. 

Pour un confort optimal et conforme à la RE2025, cette maison dispose d'une PAC avec plancher chauffant et volets roulants électriques. A noter : le prix indiqué exclut les revêtements de sol des chambres, la cuisine aménagée, la peinture, la décoration, les raccordements, les frais de notaire, l’adaptation au sol et l'assurance dommages ouvrage.

129 m2

4 ch

2 salles de bain

1 garage

Nous contacter pour cette maison

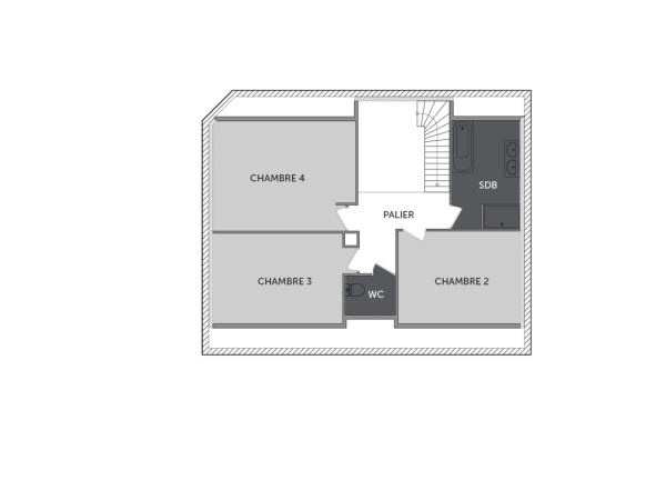
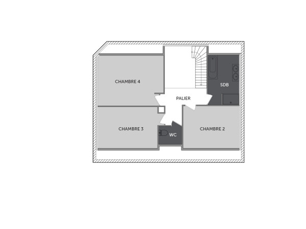
Plan(s) de la maison ARTHENAY

Plan (maison 172)
Plan (maison 172)

Les + de la maison ARTHENAY

Mais au fait on parle, on parle, mais avez-vous pensé
à commencer votre projet ?

Visites virtuelles 360°

Découvrez nos visites virtuelles 360° HD et explorez l’intérieur de nos maisons modernes. Naviguez de pièce en pièce, appréciez les volumes, les aménagements et les finitions de chaque espace. Une expérience immersive qui vous permet d’imaginer votre future maison neuve, depuis chez vous.

Toutes les visites virtuelles
Visites virtuelles 360°
Maison

Cette maison vous intéresse ?

Pour estimer le coût de construction de ce projet de maison, plus de renseignements ou prendre rendez-vous, remplissez le formulaire ci-dessous

Les champs marqués(*) sont obligatoires.