Offre spéciale

- 3 000€ sur vos frais de notaire

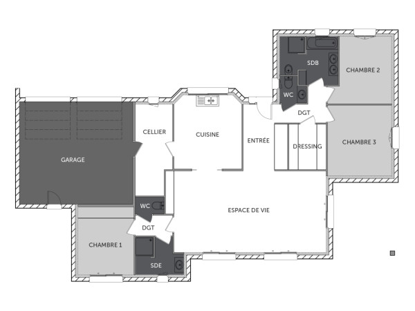
ANTALYA maison de plain-pied de 3 chambres avec deux garages

Un espace pensé pour vous, une maison à imaginer ! Et si votre maison s’adaptait à votre mode de vie ? Un bel espace de vie spacieux et lumineux, une cuisine ouverte idéale pour partager des moments en famille, et un cellier astucieux pour plus de praticité. Avec 3 chambres confortables, une suite parentale avec dressing et salle d’eau, ainsi que deux salles de bain, chacun trouve son espace. Besoin d’un bureau, d’un espace détente ou d’un aménagement sur-mesure ? Tout est possible, tout est modulable !

Une maison qui vous ressemble, à façonner selon vos envies… Prêts à la personnaliser ?

 

Pour un confort optimal et conforme à la RE2025, cette maison dispose d'une PAC avec plancher chauffant et volets roulants électriques. A noter : le prix indiqué exclut les revêtements de sol des chambres, la cuisine aménagée, la peinture, la décoration, les raccordements, les frais de notaire, l’adaptation au sol et l'assurance dommages ouvrage.

128 m2

3 ch

2 salles de bain

2 garages

Nous contacter pour cette maison

Plan(s) de la maison ANTALYA

Plan (maison 1921)

Les + de la maison ANTALYA

Mais au fait on parle, on parle, mais avez-vous pensé
à commencer votre projet ?

Visites virtuelles 360°

Découvrez nos visites virtuelles 360° HD et explorez l’intérieur de nos maisons modernes. Naviguez de pièce en pièce, appréciez les volumes, les aménagements et les finitions de chaque espace. Une expérience immersive qui vous permet d’imaginer votre future maison neuve, depuis chez vous.

Toutes les visites virtuelles
Visites virtuelles 360°
ME1705C_ANTALYA_Avant.jpg

Cette maison vous intéresse ?

Pour estimer le coût de construction de ce projet de maison, plus de renseignements ou prendre rendez-vous, remplissez le formulaire ci-dessous

Les champs marqués(*) sont obligatoires.