Offre spéciale

- 3 000€ sur vos frais de notaire

BOUSSAY maison à étage de 3 chambres avec un garage

Une façade optimisée, une maison qui s’intègre partout !  Avec sa façade pensée pour les terrains étroits, cette maison allie design compact et espaces généreux. Son architecture moderne maximise la lumière et l’ouverture, tout en offrant un intérieur spacieux et fonctionnel. Profitez d’un séjour convivial et lumineux, de 3 belles chambres, d’une salle de bain spacieuse, et d’un garage astucieusement intégré. Chaque détail est optimisé pour un confort absolu.

Pour un confort optimal et conforme à la RE2025, cette maison dispose d'une PAC avec plancher chauffant et volets roulants électriques. A noter : le prix indiqué exclut les revêtements de sol des chambres, la cuisine aménagée, la peinture, la décoration, les raccordements, les frais de notaire, l’adaptation au sol et l'assurance dommages ouvrage.

90 m2

3 ch

2 salles de bain

1 garage

Nous contacter pour cette maison

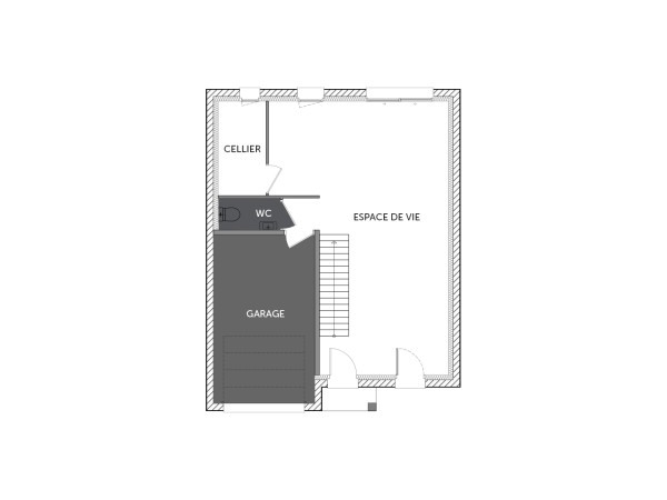
Plan(s) de la maison BOUSSAY

Plan (maison 167)
Plan (maison 167)

Les + de la maison BOUSSAY

Mais au fait on parle, on parle, mais avez-vous pensé
à commencer votre projet ?

Visites virtuelles 360°

Découvrez nos visites virtuelles 360° HD et explorez l’intérieur de nos maisons modernes. Naviguez de pièce en pièce, appréciez les volumes, les aménagements et les finitions de chaque espace. Une expérience immersive qui vous permet d’imaginer votre future maison neuve, depuis chez vous.

Toutes les visites virtuelles
Visites virtuelles 360°
Maison

Cette maison vous intéresse ?

Pour estimer le coût de construction de ce projet de maison, plus de renseignements ou prendre rendez-vous, remplissez le formulaire ci-dessous

Les champs marqués(*) sont obligatoires.