Offre spéciale

- 3 000€ sur vos frais de notaire

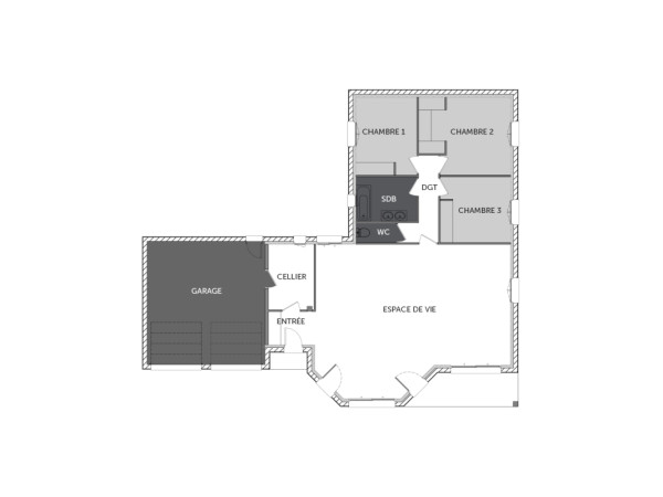
KARTA maison de plain-pied de 3 chambres avec deux garages

Une maison lumineuse et pensée pour le quotidien !

Bienvenue dans une maison où la clarté rencontre l’optimisation. Dès l’entrée, l’espace de vie capte l’attention : spacieux, ouvert et traversant, il invite naturellement à la convivialité. Trois chambres bien agencées offrent un vrai confort de nuit, tandis qu’un dégagement central fluidifie les circulations. Le cellier attenant à la cuisine facilite l’organisation, et le garage complète parfaitement cet agencement fonctionnel. Un modèle idéal pour les familles en quête de simplicité, de bien-être… et d’un vrai chez-soi à personnaliser.

Pour un confort optimal et conforme à la RE2025, cette maison dispose d'une PAC avec plancher chauffant et volets roulants électriques. A noter : le prix indiqué exclut les revêtements de sol des chambres, la cuisine aménagée, la peinture, la décoration, les raccordements, les frais de notaire, l’adaptation au sol et l'assurance dommages ouvrage.

113 m2

3 ch

1 salle de bain

2 garages

Nous contacter pour cette maison

Plan(s) de la maison KARTA

Plan (maison 155)

Les + de la maison KARTA

Mais au fait on parle, on parle, mais avez-vous pensé
à commencer votre projet ?

Visites virtuelles 360°

Découvrez nos visites virtuelles 360° HD et explorez l’intérieur de nos maisons modernes. Naviguez de pièce en pièce, appréciez les volumes, les aménagements et les finitions de chaque espace. Une expérience immersive qui vous permet d’imaginer votre future maison neuve, depuis chez vous.

Toutes les visites virtuelles
Visites virtuelles 360°
Maison

Cette maison vous intéresse ?

Pour estimer le coût de construction de ce projet de maison, plus de renseignements ou prendre rendez-vous, remplissez le formulaire ci-dessous

Les champs marqués(*) sont obligatoires.