Offre spéciale

- 3 000€ sur vos frais de notaire

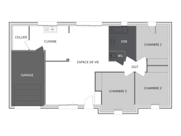
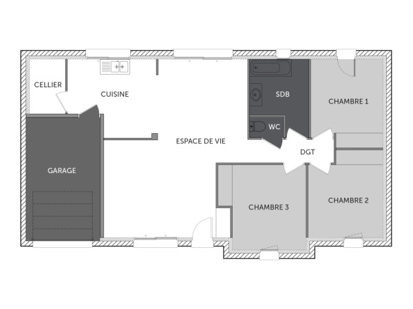
CERNAY maison de plain-pied de 3 chambres avec un garage

 Vous cherchez une maison moderne, fonctionnelle et accessible ? Ce modèle de 87 m² est idéal pour une première acquisition ! Son grand espace de vie de 45 m², baigné de lumière, offre une pièce centrale chaleureuse et conviviale. Côté nuit, 3 chambres bien agencées garantissent confort et intimité. Un garage attenant et un cellier pratique viennent compléter cet ensemble pensé pour un quotidien fluide et agréable. Facile à personnaliser, évolutive et pensée pour durer, cette maison coche toutes les cases !

Pour un confort optimal et conforme à la RE2025, cette maison dispose d'une PAC avec plancher chauffant et volets roulants électriques. A noter : le prix indiqué exclut les revêtements de sol des chambres, la cuisine aménagée, la peinture, la décoration, les raccordements, les frais de notaire, l’adaptation au sol et l'assurance dommages ouvrage.

87 m2

3 ch

1 salle de bain

1 garage

Nous contacter pour cette maison

Plan(s) de la maison CERNAY

Plan (maison 94)

Les + de la maison CERNAY

Mais au fait on parle, on parle, mais avez-vous pensé
à commencer votre projet ?

Visites virtuelles 360°

Découvrez nos visites virtuelles 360° HD et explorez l’intérieur de nos maisons modernes. Naviguez de pièce en pièce, appréciez les volumes, les aménagements et les finitions de chaque espace. Une expérience immersive qui vous permet d’imaginer votre future maison neuve, depuis chez vous.

Toutes les visites virtuelles
Visites virtuelles 360°
Maison

Cette maison vous intéresse ?

Pour estimer le coût de construction de ce projet de maison, plus de renseignements ou prendre rendez-vous, remplissez le formulaire ci-dessous

Les champs marqués(*) sont obligatoires.