Offre spéciale

- 3 000€ sur vos frais de notaire

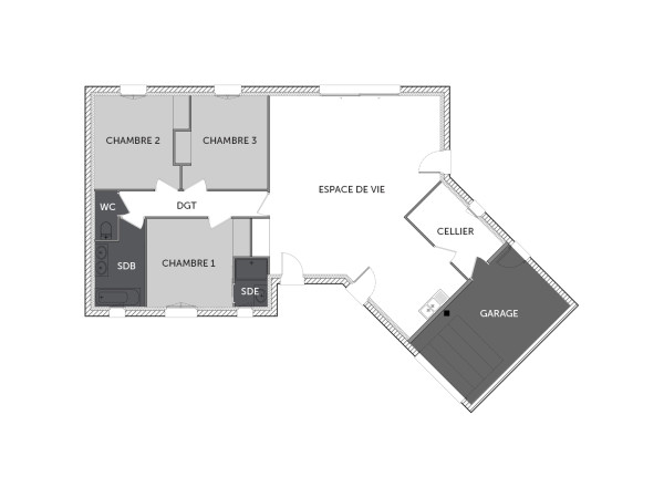
CHAMBRAY maison de plain-pied de 3 chambres avec un garage

Un intérieur pensé pour le confort et la fluidité ! Avec son espace de vie généreux et lumineux, cette maison conjugue design et praticité. Son agencement malin offre 3 chambres bien séparées, une suite parentale avec salle d’eau, et une salle de bain familiale pour plus de confort au quotidien. Un garage attenant et un cellier fonctionnel viennent compléter ce cadre de vie agréable, pensé pour faciliter le quotidien tout en offrant des espaces bien définis.

 Pour un confort optimal et conforme à la RE2025, cette maison dispose d'une PAC avec plancher chauffant et volets roulants électriques. A noter : le prix indiqué exclut les revêtements de sol des chambres, la cuisine aménagée, la peinture, la décoration, les raccordements, les frais de notaire, l’adaptation au sol et l'assurance dommages ouvrage.

100 m2

3 ch

2 salles de bain

1 garage

Nous contacter pour cette maison

Plan(s) de la maison CHAMBRAY

Plan (maison 162)

Les + de la maison CHAMBRAY

Mais au fait on parle, on parle, mais avez-vous pensé
à commencer votre projet ?

Visites virtuelles 360°

Découvrez nos visites virtuelles 360° HD et explorez l’intérieur de nos maisons modernes. Naviguez de pièce en pièce, appréciez les volumes, les aménagements et les finitions de chaque espace. Une expérience immersive qui vous permet d’imaginer votre future maison neuve, depuis chez vous.

Toutes les visites virtuelles
Visites virtuelles 360°
ME1722A_Chambray_Avant.jpg

Cette maison vous intéresse ?

Pour estimer le coût de construction de ce projet de maison, plus de renseignements ou prendre rendez-vous, remplissez le formulaire ci-dessous

Les champs marqués(*) sont obligatoires.