Offre spéciale

- 3 000€ sur vos frais de notaire

PROPRIANO maison à étage de 4 chambres sans garage

Un espace qui évolue avec vous ! Ici, tout est possible : un vaste espace de vie lumineux de plus de 60 m², deux chambres confortables au rez-de-chaussée, et un étage modulable pour laisser libre cours à vos envies. Besoin d’une salle de jeux, d’un espace télétravail ou de chambres supplémentaires ? C’est vous qui décidez ! Avec une architecture élégante et un volume repensé pour la lumière, cette maison personnalisable n’attend que votre touche pour devenir votre chez-vous idéal.

 Une maison unique, pensée pour vous et par vous. Prêts à la façonner ?

Pour un confort optimal et conforme à la RE2025, cette maison dispose d'une PAC avec plancher chauffant au rez-de-chaussée, radiateurs électriques à l'étage et volets roulants électriques . A noter : le prix indiqué exclut les revêtements de sol des chambres, la cuisine aménagée, la peinture, la décoration, les raccordements, les frais de notaire, l’adaptation au sol et l'assurance dommages ouvrage. (Piscine non contractuelle, non comprise dans le prix)

114 m2

4 ch

2 salles de bain

Nous contacter pour cette maison

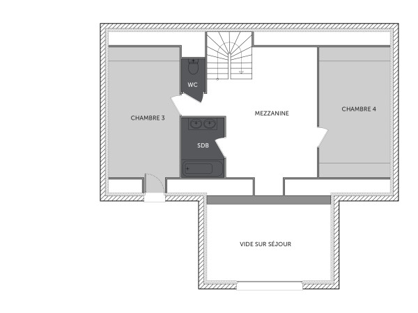
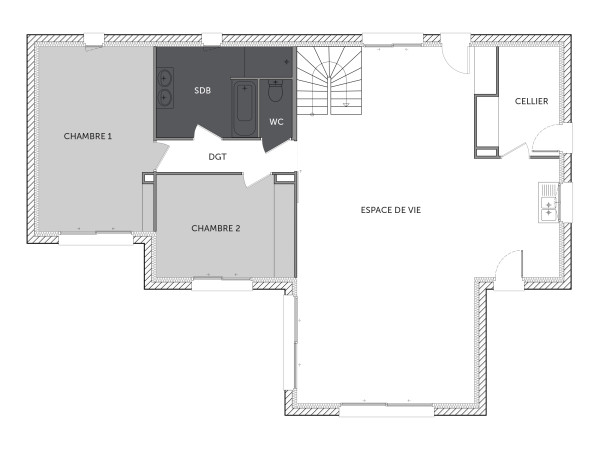
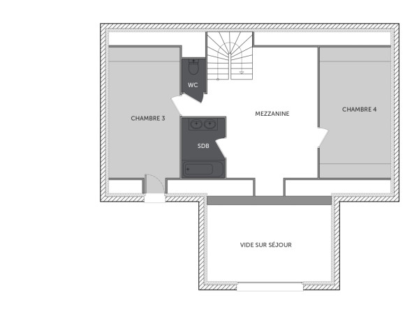
Plan(s) de la maison PROPRIANO

Plan (maison 204)
Plan (maison 204)

Les + de la maison PROPRIANO

Mais au fait on parle, on parle, mais avez-vous pensé
à commencer votre projet ?

Visites virtuelles 360°

Découvrez nos visites virtuelles 360° HD et explorez l’intérieur de nos maisons modernes. Naviguez de pièce en pièce, appréciez les volumes, les aménagements et les finitions de chaque espace. Une expérience immersive qui vous permet d’imaginer votre future maison neuve, depuis chez vous.

Toutes les visites virtuelles
Visites virtuelles 360°
ME1770_PROPIANO_Arriere.jpg

Cette maison vous intéresse ?

Pour estimer le coût de construction de ce projet de maison, plus de renseignements ou prendre rendez-vous, remplissez le formulaire ci-dessous

Les champs marqués(*) sont obligatoires.