Offre spéciale

- 3 000€ sur vos frais de notaire

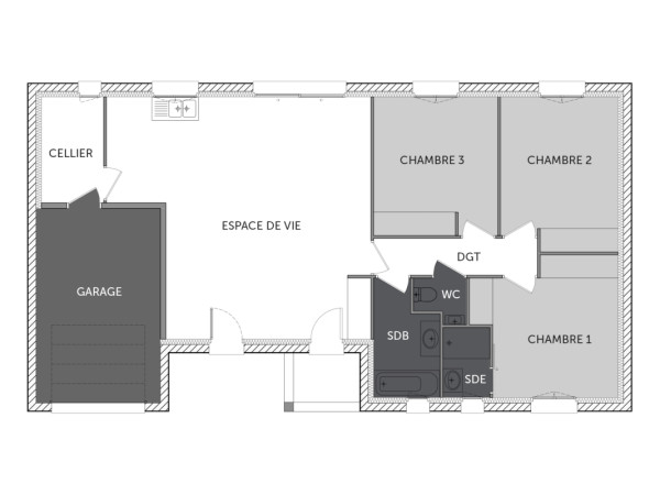
CHAUMUSSAY maison de plain-pied de 3 chambres avec un garage

CeUne maison pensée pour vous, compacte et pleine de charme ! Vous rêvez d’un chez-vous fonctionnel, moderne et confortable ? Ce modèle optimisé vous offre 3 chambres bien agencées, un espace de vie lumineux et ouvert de près de 37 m², une salle de bain + une salle d’eau, un cellier pratique et un garage intégré. Idéale pour un premier achat ou un investissement malin, cette maison a tout d’une grande !

Pour un confort optimal et conforme à la RE2025, cette maison dispose d'une PAC avec plancher chauffant et volets roulants électriques. A noter : le prix indiqué exclut les revêtements de sol des chambres, la cuisine aménagée, la peinture, la décoration, les raccordements, les frais de notaire, l’adaptation au sol et l'assurance dommages ouvrage.

87 m2

3 ch

1 salle de bain

1 garage

Nous contacter pour cette maison

Plan(s) de la maison CHAUMUSSAY

Plan (maison 81)

Les + de la maison CHAUMUSSAY

Mais au fait on parle, on parle, mais avez-vous pensé
à commencer votre projet ?

Visites virtuelles 360°

Découvrez nos visites virtuelles 360° HD et explorez l’intérieur de nos maisons modernes. Naviguez de pièce en pièce, appréciez les volumes, les aménagements et les finitions de chaque espace. Une expérience immersive qui vous permet d’imaginer votre future maison neuve, depuis chez vous.

Toutes les visites virtuelles
Visites virtuelles 360°
Maison

Cette maison vous intéresse ?

Pour estimer le coût de construction de ce projet de maison, plus de renseignements ou prendre rendez-vous, remplissez le formulaire ci-dessous

Les champs marqués(*) sont obligatoires.