Offre spéciale

- 3 000€ sur vos frais de notaire

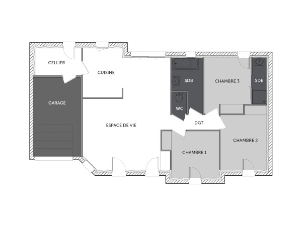
CINAIS maison de plain-pied de 3 chambres avec un garage

Une maison lumineuse et pleine de charme !  Avec son architecture élégante et intemporelle, cette maison séduit par ses volumes généreux et son agencement optimisé. Son grand espace de vie ouvert sur l’extérieur invite à la convivialité, tandis que ses 3 chambres bien pensées offrent confort et intimité. Un garage intégré et des espaces fonctionnels complètent ce cadre idéal pour toute la famille.

Pour un confort optimal et conforme à la RE2025, cette maison dispose d'une PAC avec plancher chauffant et volets roulants électriques. A noter : le prix indiqué exclut les revêtements de sol des chambres, la cuisine aménagée, la peinture, la décoration, les raccordements, les frais de notaire, l’adaptation au sol et l'assurance dommages ouvrage.
 

88 m2

3 ch

1 salle de bain

1 garage

Nous contacter pour cette maison

Plan(s) de la maison CINAIS

Plan (maison 97)

Les + de la maison CINAIS

Mais au fait on parle, on parle, mais avez-vous pensé
à commencer votre projet ?

Visites virtuelles 360°

Découvrez nos visites virtuelles 360° HD et explorez l’intérieur de nos maisons modernes. Naviguez de pièce en pièce, appréciez les volumes, les aménagements et les finitions de chaque espace. Une expérience immersive qui vous permet d’imaginer votre future maison neuve, depuis chez vous.

Toutes les visites virtuelles
Visites virtuelles 360°
ME1727T_CINAIS_Avant.jpg

Cette maison vous intéresse ?

Pour estimer le coût de construction de ce projet de maison, plus de renseignements ou prendre rendez-vous, remplissez le formulaire ci-dessous

Les champs marqués(*) sont obligatoires.