Offre spéciale

- 3 000€ sur vos frais de notaire

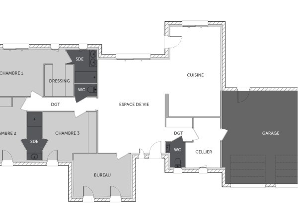
ANKARTA maison de plain-pied de 4 chambres avec deux garages

Une maison qui vous laisse carte blanche ! Un intérieur où tout est possible : un bel espace de vie lumineux, une cuisine spacieuse de plus de 20 m², et un bureau indépendant pour concilier travail et confort. Avec 3 chambres, dont une grande suite parentale, et deux salles d’eau, chacun profite de son espace. Besoin d’un coin lecture, d’un atelier créatif ou d’un dressing supplémentaire ? Cette maison s’adapte à vous, pas l’inverse ! Un garage généreux et un cellier malin viennent parfaire ce cadre pensé pour votre bien-être. Ici, tout est personnalisable. Et si vous en faisiez votre chez-vous ?

Pour un confort optimal et conforme à la RE2025, cette maison dispose d'une PAC avec plancher chauffant et volets roulants électriques. A noter : le prix indiqué exclut les revêtements de sol des chambres, la cuisine aménagée, la peinture, la décoration, les raccordements, les frais de notaire, l’adaptation au sol et l'assurance dommages ouvrage.

 

130 m2

4 ch

2 salles de bain

2 garages

Nous contacter pour cette maison

Plan(s) de la maison ANKARTA

Plan (maison 70)

Les + de la maison ANKARTA

Mais au fait on parle, on parle, mais avez-vous pensé
à commencer votre projet ?

Visites virtuelles 360°

Découvrez nos visites virtuelles 360° HD et explorez l’intérieur de nos maisons modernes. Naviguez de pièce en pièce, appréciez les volumes, les aménagements et les finitions de chaque espace. Une expérience immersive qui vous permet d’imaginer votre future maison neuve, depuis chez vous.

Toutes les visites virtuelles
Visites virtuelles 360°
ME1704_ANKARTA_Avant.jpg

Cette maison vous intéresse ?

Pour estimer le coût de construction de ce projet de maison, plus de renseignements ou prendre rendez-vous, remplissez le formulaire ci-dessous

Les champs marqués(*) sont obligatoires.