Offre spéciale

- 3 000€ sur vos frais de notaire

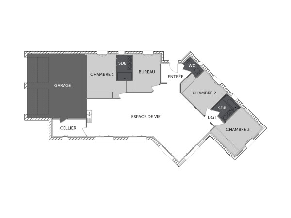
CHANAIS maison de plain-pied de 3 chambres avec un garage

Laissez-vous surprendre par cette maison unique, où l’originalité de l’architecture rencontre un agencement ingénieux. Avec 2 chambres spacieuses, un bureau inspirant, une pièce de vie magistrale de près de 50 m², et des espaces bien pensés comme un cellier pratique et un garage intégré, elle offre volumes généreux et fluidité des espaces.

Un intérieur qui casse les codes et s’adapte à votre mode de vie !

Pour un confort optimal et conforme à la RE2025, cette maison dispose d'une PAC avec plancher chauffant et volets roulants électriques. A noter : le prix indiqué exclut les revêtements de sol des chambres, la cuisine aménagée, la peinture, la décoration, les raccordements, les frais de notaire, l’adaptation au sol et l'assurance dommages ouvrage.

 

110 m2

3 ch

2 salles de bain

1 garage

Nous contacter pour cette maison

Plan(s) de la maison CHANAIS

Plan (maison 179)

Les + de la maison CHANAIS

Mais au fait on parle, on parle, mais avez-vous pensé
à commencer votre projet ?

Visites virtuelles 360°

Découvrez nos visites virtuelles 360° HD et explorez l’intérieur de nos maisons modernes. Naviguez de pièce en pièce, appréciez les volumes, les aménagements et les finitions de chaque espace. Une expérience immersive qui vous permet d’imaginer votre future maison neuve, depuis chez vous.

Toutes les visites virtuelles
Visites virtuelles 360°
ME1723C_Chanais_Avant.jpg

Cette maison vous intéresse ?

Pour estimer le coût de construction de ce projet de maison, plus de renseignements ou prendre rendez-vous, remplissez le formulaire ci-dessous

Les champs marqués(*) sont obligatoires.