Offre spéciale

- 3 000€ sur vos frais de notaire

CUSSAY maison à étage de 4 chambres avec un garage

Un concentré d’ingéniosité pour une maison pleine de vie ! Cette maison, c’est l’art d’optimiser chaque mètre carré sans compromis sur le style et le confort. Avec son espace de vie spacieux et lumineux, sa suite parentale au rez-de-chaussée, et trois belles chambres à l’étage, elle réinvente la façon d’habiter. Chaque pièce a été pensée pour un quotidien fluide et fonctionnel : deux salles d’eau, un garage pratique, un cellier malin, et des espaces parfaitement équilibrés entre intimité et convivialité. 

Pour un confort optimal et conforme à la RE2025, cette maison dispose d'une PAC avec plancher chauffant et volets roulants électriques. A noter : le prix indiqué exclut les revêtements de sol des chambres, la cuisine aménagée, la peinture, la décoration, les raccordements, les frais de notaire, l’adaptation au sol et l'assurance dommages ouvrage.

101 m2

4 ch

2 salles de bain

1 garage

Nous contacter pour cette maison

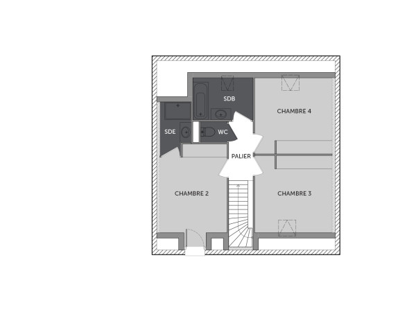
Plan(s) de la maison CUSSAY

Plan (maison 174)
Plan (maison 174)

Les + de la maison CUSSAY

Mais au fait on parle, on parle, mais avez-vous pensé
à commencer votre projet ?

Visites virtuelles 360°

Découvrez nos visites virtuelles 360° HD et explorez l’intérieur de nos maisons modernes. Naviguez de pièce en pièce, appréciez les volumes, les aménagements et les finitions de chaque espace. Une expérience immersive qui vous permet d’imaginer votre future maison neuve, depuis chez vous.

Toutes les visites virtuelles
Visites virtuelles 360°
ME1730T_CUSSAY_Avant.png

Cette maison vous intéresse ?

Pour estimer le coût de construction de ce projet de maison, plus de renseignements ou prendre rendez-vous, remplissez le formulaire ci-dessous

Les champs marqués(*) sont obligatoires.