Offre spéciale

- 3 000€ sur vos frais de notaire

DUBAÏ maison de plain-pied de 3 chambres avec un garage

L’audace de l’espace, le confort de l’élégance  ! Laissez place à l’inspiration avec ce modèle à l’architecture épurée, où chaque mètre carré est pensé pour conjuguer volume et raffinement. La vaste pièce de vie baignée de lumière invite à la convivialité, tandis que la suite parentale, avec dressing et salle d’eau privée, crée un véritable cocon intime. Deux autres chambres spacieuses, une seconde salle d’eau, un grand cellier et un garage intégré complètent ce plain-pied contemporain. Une maison à personnaliser, pour un cadre de vie à votre image.

 

Pour un confort optimal et conforme à la RE2025, cette maison dispose d'une PAC avec plancher chauffant et volets roulants électriques. A noter : le prix indiqué exclut les revêtements de sol des chambres, la cuisine aménagée, la peinture, la décoration, les raccordements, les frais de notaire, l’adaptation au sol et l'assurance dommages ouvrage. (Piscine non contractuelle, non comprise dans le prix)

150 m2

3 ch

2 salles de bain

1 garage

Nous contacter pour cette maison

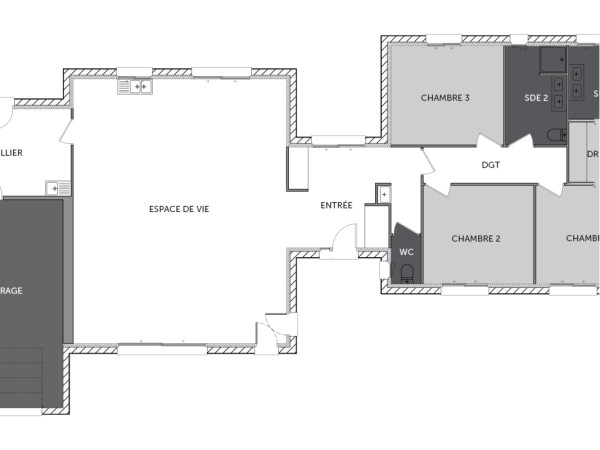
Plan(s) de la maison DUBAÏ

Plan (maison 74)

Les + de la maison DUBAÏ

Mais au fait on parle, on parle, mais avez-vous pensé
à commencer votre projet ?

Visites virtuelles 360°

Découvrez nos visites virtuelles 360° HD et explorez l’intérieur de nos maisons modernes. Naviguez de pièce en pièce, appréciez les volumes, les aménagements et les finitions de chaque espace. Une expérience immersive qui vous permet d’imaginer votre future maison neuve, depuis chez vous.

Toutes les visites virtuelles
Visites virtuelles 360°
ME1736_DUBAI_Mono_Avant.jpg

Cette maison vous intéresse ?

Pour estimer le coût de construction de ce projet de maison, plus de renseignements ou prendre rendez-vous, remplissez le formulaire ci-dessous

Les champs marqués(*) sont obligatoires.