Offre spéciale

- 3 000€ sur vos frais de notaire

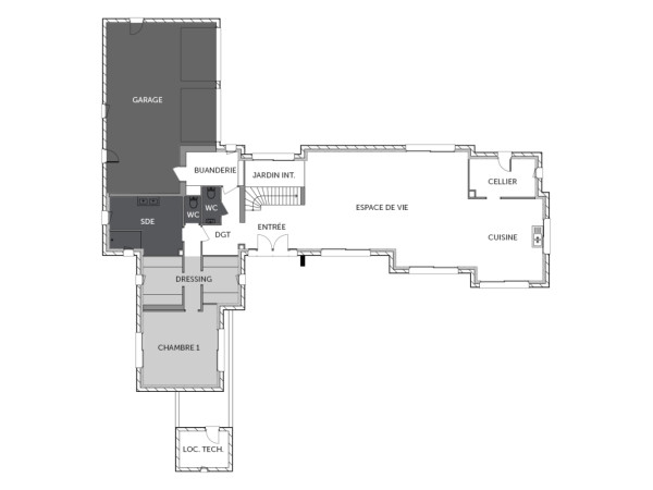
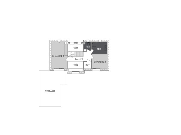
OTTAWA maison à étage de 3 chambres avec deux garages

Une maison ? Non, une toile blanche à personnaliser !  Ici, tout s’adapte à votre mode de vie. Un vaste espace de vie à aménager selon vos envies, une cuisine ouverte qui invite à la convivialité, et une suite parentale avec dressing et salle de bain privée pour un confort absolu. Besoin d’un bureau, d’un espace détente ou d’une salle de sport ? Tout est modulable ! À l’étage, une chambre lumineuse et une terrasse privative deviennent votre havre de paix.

 Créez un lieu qui vous ressemble, imaginez sans limites !

Pour un confort optimal et conforme à la RE2025, cette maison dispose d’une PAC avec plancher chauffant, radiateurs à l’étage et volets roulants électriques.  À noter : Le prix indiqué exclut les revêtements de sol des chambres, la cuisine aménagée, la peinture, la décoration, les raccordements, les frais de notaire et l’assurance dommages-ouvrage. (Piscine non contractuelle, non comprise dans le prix)

200 m2

3 ch

2 salles de bain

2 garages

Nous contacter pour cette maison

Plan(s) de la maison OTTAWA

Plan (maison 215)
Plan (maison 215)

Les + de la maison OTTAWA

Mais au fait on parle, on parle, mais avez-vous pensé
à commencer votre projet ?

Visites virtuelles 360°

Découvrez nos visites virtuelles 360° HD et explorez l’intérieur de nos maisons modernes. Naviguez de pièce en pièce, appréciez les volumes, les aménagements et les finitions de chaque espace. Une expérience immersive qui vous permet d’imaginer votre future maison neuve, depuis chez vous.

Toutes les visites virtuelles
Visites virtuelles 360°
ME1762_OTTAWA_Avant.jpg

Cette maison vous intéresse ?

Pour estimer le coût de construction de ce projet de maison, plus de renseignements ou prendre rendez-vous, remplissez le formulaire ci-dessous

Les champs marqués(*) sont obligatoires.