Offre spéciale

- 3 000€ sur vos frais de notaire

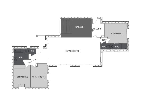
SYDNEY maison de plain-pied de 3 chambres avec un garage

Vous aimerez les lignes très modernes et épurées de cette villa de plain-pied ainsi que la fluidité de sa distribution ; tous les espaces sont justement pensés. Le cœur de la maison est la pièce principale autour de laquelle s'articulent d'un côté, la suite parentale et de l'autre, deux chambres et leur salle de bain. Dans la même logique d'optimisation de l'espace, des rangements sont prévus dans chaque pièce. Grâce à de belles surfaces vitrées, la lumière sera l'un des atouts majeurs de cette réalisation. Du carrelage de standing, un chauffage haute performance et écologique.

 

Pour un confort optimal et conforme à la RE2025, cette maison dispose d'une PAC avec plancher chauffant et volets roulants électriques. A noter : le prix indiqué exclut les revêtements de sol des chambres, la cuisine aménagée, la peinture, la décoration, les raccordements, les frais de notaire, l’adaptation au sol et l'assurance dommages ouvrage.

117 m2

3 ch

2 salles de bain

1 garage

Nous contacter pour cette maison

Plan(s) de la maison SYDNEY

Plan (maison 50)

Les + de la maison SYDNEY

Mais au fait on parle, on parle, mais avez-vous pensé
à commencer votre projet ?

Visites virtuelles 360°

Découvrez nos visites virtuelles 360° HD et explorez l’intérieur de nos maisons modernes. Naviguez de pièce en pièce, appréciez les volumes, les aménagements et les finitions de chaque espace. Une expérience immersive qui vous permet d’imaginer votre future maison neuve, depuis chez vous.

Toutes les visites virtuelles
Visites virtuelles 360°
Maison

Cette maison vous intéresse ?

Pour estimer le coût de construction de ce projet de maison, plus de renseignements ou prendre rendez-vous, remplissez le formulaire ci-dessous

Les champs marqués(*) sont obligatoires.