Portes Ouvertes

Maisons Ericlor vous invite à ses Portes Ouvertes exceptionnelles à Tiercé (49125), le 10 et 11 avril 2026

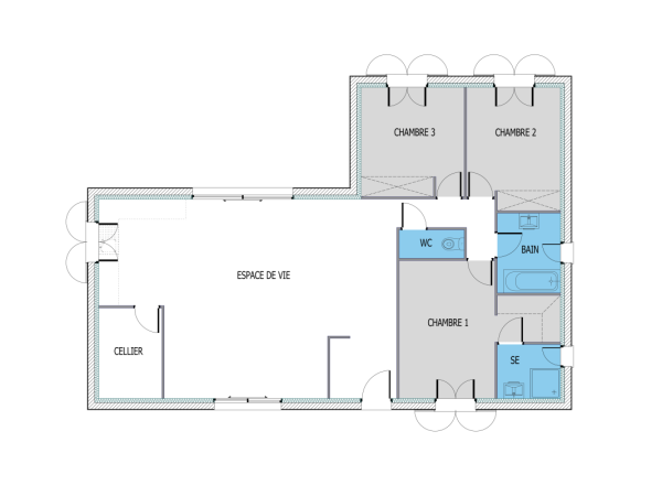
CUBA 3 maison de plain-pied de 3 chambres sans garage

Cette maison de plain-pied en L, fonctionnelle et spacieuse vous propose un bel espace de vie lumineux et traversant. Sa cuisine est ouverte sur le séjour et a un accès direct au cellier. Son espace nuit est composé de trois belles chambres dont une suite parentale avec dressing et salle de bain privative, une deuxième salle de bains équipé ainsi que des wc séparés. Pour vous assurer un confort de vie et conformément à la RE2025, nous avons choisi un mode de chauffage par PAC + plancher chauffant, volets roulants électriques. Prix hors fourniture et pose : des appareils sanitaires (sauf système de chauffage et d'eau chaude sanitaire), du carrelage et de la faïence, des revêtements de sol dans les chambres. Hors décoration et aménagement intérieur et peinture. Hors raccordements, frais de notaire et dommage ouvrage.

99 m2

3 ch

1 salle de bain

Nous contacter pour cette maison

Plan(s) de la maison CUBA 3

Plan (maison 1099)

Les + de la maison CUBA 3

Mais au fait on parle, on parle, mais avez-vous pensé
à commencer votre projet ?

Visites virtuelles 360°

Découvrez nos visites virtuelles 360° HD et explorez l’intérieur de nos maisons modernes. Naviguez de pièce en pièce, appréciez les volumes, les aménagements et les finitions de chaque espace. Une expérience immersive qui vous permet d’imaginer votre future maison neuve, depuis chez vous.

Toutes les visites virtuelles
Visites virtuelles 360°
PA1713A_CUBA_100_ARRIERE.jpg

Cette maison vous intéresse ?

Pour estimer le coût de construction de ce projet de maison, plus de renseignements ou prendre rendez-vous, remplissez le formulaire ci-dessous

Les champs marqués(*) sont obligatoires.