Offre spéciale

- 3 000€ sur vos frais de notaire

HOSTAY maison de plain-pied de 3 chambres avec un garage

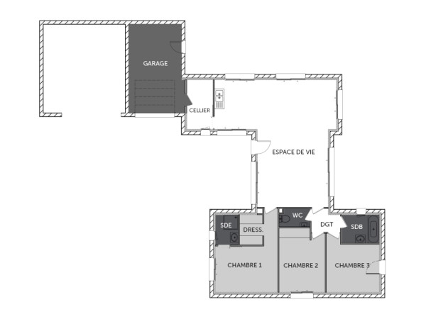
Avec ses 3 chambres bien regroupées côté nuit, dont une avec dressing, cette maison de plain-pied offre un agencement fonctionnel et confortable. Son espace de vie central, lumineux et ouvert, constitue le cœur chaleureux de la maison. Salle de bain, salle d'eau, WC indépendant, cellier et garage complètent ce plan optimisé, pensé pour un quotidien pratique et fluide. Un modèle compact, complet et personnalisable, idéal pour un projet familial.

Pour un confort optimal et conforme à la RE2025, cette maison dispose d'une PAC avec plancher chauffant et volets roulants électriques. A noter : le prix indiqué exclut les revêtements de sol des chambres, la cuisine aménagée, la peinture, la décoration, les raccordements, les frais de notaire, l’adaptation au sol et l'assurance dommages ouvrage.

93 m2

3 ch

2 salles de bain

1 garage

Nous contacter pour cette maison

Plan(s) de la maison HOSTAY

Plan (maison 159)

Les + de la maison HOSTAY

Mais au fait on parle, on parle, mais avez-vous pensé
à commencer votre projet ?

Visites virtuelles 360°

Découvrez nos visites virtuelles 360° HD et explorez l’intérieur de nos maisons modernes. Naviguez de pièce en pièce, appréciez les volumes, les aménagements et les finitions de chaque espace. Une expérience immersive qui vous permet d’imaginer votre future maison neuve, depuis chez vous.

Toutes les visites virtuelles
Visites virtuelles 360°
ME1740C_HOSTAY_Avant.jpg

Cette maison vous intéresse ?

Pour estimer le coût de construction de ce projet de maison, plus de renseignements ou prendre rendez-vous, remplissez le formulaire ci-dessous

Les champs marqués(*) sont obligatoires.