Offre spéciale

- 3 000€ sur vos frais de notaire

LUBLÉ maison à étage de 4 chambres avec un garage

Une maison qui casse les codes et s’adapte à votre vie ! Parce que votre maison doit être aussi unique que vous, ce modèle repense les espaces pour allier lumière, fluidité et confort. Imaginez un séjour ouvert, baigné de clarté, où chaque coin invite à la convivialité. Une cuisine qui donne envie de partager, un cellier malin, une lingerie discrète... Ici, chaque détail a son importance. À l’étage, place à la sérénité : 3 chambres généreuses, une mezzanine qui inspire et une salle de bains où l’on prend le temps. La suite parentale avec dressing, elle, est votre havre privé. Et si votre maison ne ressemblait qu’à vous ? Personnalisable selon vos envies, elle n’attend plus que votre touche !

Pour un confort optimal et conforme à la RE2025, cette maison dispose d’une PAC avec plancher chauffant, radiateurs à l’étage et volets roulants électriques.  À noter : Le prix indiqué exclut les revêtements de sol des chambres, la cuisine aménagée, la peinture, la décoration, l’adaptation au sol ,les raccordements, les frais de notaire et l’assurance dommages ouvrage

Envie d’en savoir plus ? Contactez-nous et donnez vie à votre projet !

146 m2

4 ch

2 salles de bain

1 garage

Nous contacter pour cette maison

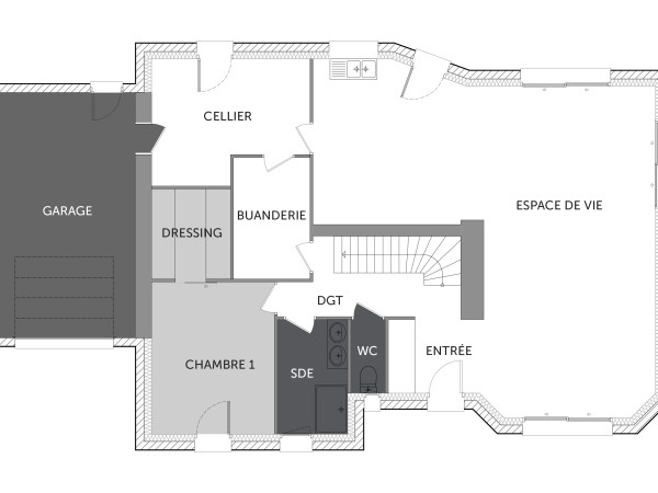
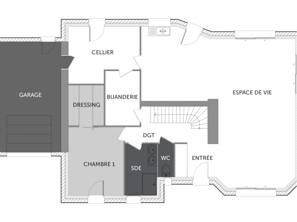
Plan(s) de la maison LUBLÉ

Plan (maison 185)
Plan (maison 185)

Les + de la maison LUBLÉ

Mais au fait on parle, on parle, mais avez-vous pensé
à commencer votre projet ?

Visites virtuelles 360°

Découvrez nos visites virtuelles 360° HD et explorez l’intérieur de nos maisons modernes. Naviguez de pièce en pièce, appréciez les volumes, les aménagements et les finitions de chaque espace. Une expérience immersive qui vous permet d’imaginer votre future maison neuve, depuis chez vous.

Toutes les visites virtuelles
Visites virtuelles 360°
ME1744MC - LARIMAR_Avant.jpg

Cette maison vous intéresse ?

Pour estimer le coût de construction de ce projet de maison, plus de renseignements ou prendre rendez-vous, remplissez le formulaire ci-dessous

Les champs marqués(*) sont obligatoires.