Offre spéciale

- 3 000€ sur vos frais de notaire

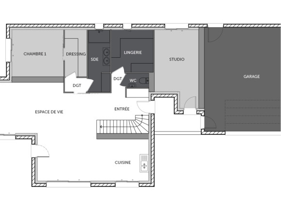
Plans de maisons en L à télécharger

21 plans de maison correspondent à votre recherche

Maison en L

vos filtres


Ce plan de maison vous inspire ?

Pour débuter votre projet, inspirez-vous de nos plans de maison en téléchargement.

Les champs marqués(*) sont obligatoires.