Offre spéciale

- 3 000€ sur vos frais de notaire

Plans de maisons traditionnelles à télécharger

Vous êtes à la recherche d’un plan de maison avec un style traditionnel ? Maisons Ericlor, spécialiste de la construction de maisons sur-mesure, vous invite à télécharger gratuitement des plans de maisons traditionnelles. Découvrez sur cette page une grande variété de plans de maison traditionnelle. Maison à étage ou de plain-pied, maison avec 3 ou 4 chambres, maison avec ou sans garage, faites votre choix parmi notre large sélection de modèles de plans de maisons traditionnelles.

26 plans de maison correspondent à votre recherche

Maison traditionnelle

vos filtres

L’architecture intemporelle des maisons traditionnelles

Les plans de maisons avec un style traditionnel varient en fonction des régions. Maisons Ericlor, constructeur de maisons sur-mesure, est présent sur les départements de l’Indre-et-Loire, Loiret, Loir-et-Cher, Maine-et-Loire, Sarthe et la Vienne. Spécialistes du foncier, nous nous adaptons aux spécificités locales. Néanmoins, le plan d’une maison traditionnelle possède généralement les caractéristiques suivantes. Souvent marquée par des lignes classiques, la maison traditionnelle, qu'elle soit de plain-pied ou à étage, séduit par son caractère intemporel. Les agencements des plans de maisons traditionnelles se distinguent par la disposition spécifique des pièces, réservant des espaces dédiés à des fonctions distinctes telles que le salon, la salle à manger et la cuisine. Choisir ce type de plan de maison c’est assurément créer une atmosphère chaleureuse et accueillante. En conclusion, le plan d’une maison traditionnelle répond aux besoins modernes tout en préservant l'esthétique classique.

Nos modèles de plans de maisons traditionnelles

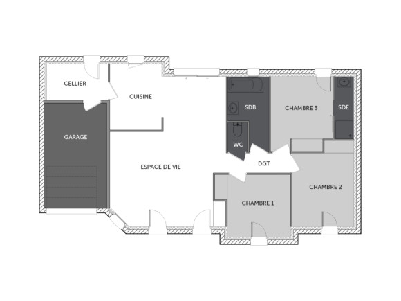
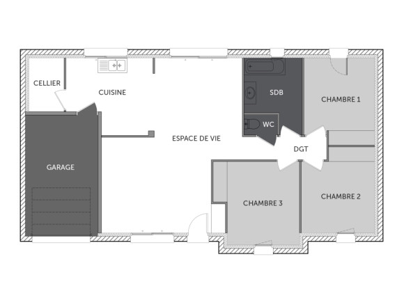
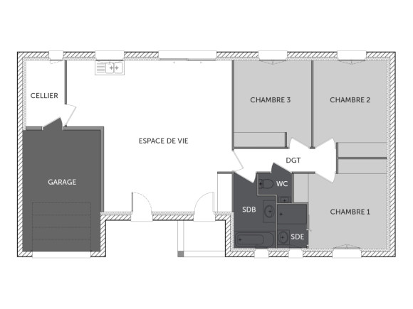
Pour vous aider à trouver l’inspiration, Maisons Ericlor vous invite à télécharger gratuitement plusieurs plans de maisons avec un style traditionnel. Maison traditionnelle de plain-pied ou à étage, maison traditionnelle en forme de L ou en rectangle, maison traditionnelle avec ou sans garage, il y en a pour tous les goûts et pour tous les prix ! Parmi les modèles de plans favoris de notre clientèle, découvrez la maison DOUE+. D’une surface habitable de 120 m², cette maison traditionnelle de plain-pied se compose de 4 chambres, une salle de bains et un garage. Son architecture en L permet une séparation intéressante des pièces de vie de l’espace nuit. La pièce de vie, d’une surface de 50 m², reste l’élément central de ce plan de maison. Ce type de plan convient particulièrement à une famille. Selon votre région, vous aurez le choix entre plusieurs toitures. Si vous envisagez plutôt une maison traditionnelle à étage, la maison TESSEN pourrait vous plaire. Ce plan de maison traditionnelle à étage reprend la volumétrie régionale des bords de Loire. D’une surface habitable de 136 m², cette maison se compose de 3 chambres, 2 salles de bains et un garage. La suite parentale avec salle d’eau privative et dressing a été imaginé au rez-de-chaussée tandis que l’étage accueille les 2 chambres des enfants.

Trouvez l’inspiration avec d’autres styles de plans de maisons

Maisons Ericlor conçoit aussi bien des maisons avec un style traditionnel qu’avec un style moderne, contemporain ou écologique. Constructeur de maisons sur-mesure, nous nous adaptons à vos envies, votre style de vie et votre budget. Pour trouver l’inspiration, parcourez nos autres plans de maisons avec d’autres styles.


Ce plan de maison vous inspire ?

Pour débuter votre projet, inspirez-vous de nos plans de maison en téléchargement.

Les champs marqués(*) sont obligatoires.