Offre spéciale

- 3 000€ sur vos frais de notaire

Plans de maisons sans garage à télécharger

Vous avez le projet de faire construire une maison sans garage ? Pour vous inspirer, explorez nos différents plans de maisons individuelles, de plain-pied ou à étage, sans garage. Maisons Ericlor, spécialiste de la construction de maisons sur-mesure, vous accompagne dans la réalisation d’une maison sans garage qui correspond à votre style de vie et à vos besoins.

7 plans de maison correspondent à votre recherche

0 garage(s)

vos filtres

Une diversité de plans de maison sans garage

Que vous recherchiez un style moderne ou un style traditionnel, vous trouverez forcément un plan de maison individuelle sans garage qui correspond à vos préférences esthétiques. Chaque modèle de maison est conçu de manière à optimiser les surfaces des pièces, vous permettant de personnaliser votre projet en fonction de votre terrain, de votre budget et de vos goûts. N'hésitez pas à explorer notre sélection de plans de maison sans garage et donnez vie à votre projet de construction de maison !

Espace intérieur : ajouter une pièce supplémentaire à votre maison

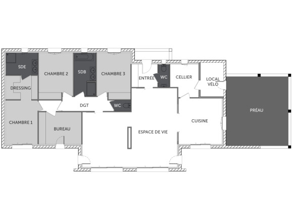
Supprimer le garage d’un projet de construction de maison peut sembler un sacrifice, mais cela libère en réalité une précieuse surface intérieure. Les plans de maison sans garage maximisent l'espace habitable en vous donnant la possibilité de disposer les pièces de votre maison à votre guise. Vous pouvez ainsi adapter la disposition des pièces et créer un intérieur qui correspond parfaitement à vos besoins et à votre style de vie. Vous pouvez par exemple remplacer l’espace d’un garage par des pièces supplémentaires, comme une salle de bain, une chambre, un bureau ou une pièce de rangement bien pensée. Vous pouvez également opter pour la création d’un carport en remplacement d’un garage. Généralement fabriqués en bois, les lignes architecturales des carports apportent un certain caractère à votre maison. Les coûts d’un carport peuvent être plus intéressant que la construction d’un garage car un carport nécessite moins de matériaux. Cette flexibilité vous permet de personnaliser votre maison en fonction de vos besoins spécifiques. Téléchargez par exemple notre modèle de plan de maison de plain-pied VEIGNA d’une surface habitable de 132 m² se compose d’un grand séjour, d’une cuisine ouverte, une salle d’eau privative dans la suite parentale, 3 chambres et une salle de bain. Cette maison de plain-pied offre un style plutôt traditionnelle grâce à sa toiture 4 pans.

Une maison sans garage sur un petit terrain

Les plans de maison sans garage s'adaptent parfaitement à différentes configurations de terrain. Que vous disposiez d'un petit terrain en ville ou d'un vaste terrain rural, ces plans vous permettent de concevoir une maison qui s'intègre harmonieusement à son environnement. Sur un petit terrain, nous vous conseillons la construction d’une maison à étage sans garage pour maximiser votre surface habitable et avoir une emprise au sol diminuée. Découvrez par exemple notre modèle de maison à étage PROPRIANO. Avec 4 chambres et 2 salles de bains, ce type de maison traditionnelle avec un niveau peut accueillir toute votre famille.

Design extérieur

En éliminant le garage, vous bénéficiez d'une plus grande liberté pour concevoir l'extérieur de votre maison. Vous pouvez explorer divers modèles architecturaux et choisir un design extérieur unique et personnalisé qui correspond à vos préférences esthétiques. Modernes, traditionnels ou contemporains, explorez nos différents types de modèles de maison et trouvez celui qui vous ressemble le plus. Que vous préfériez une maison de plain-pied ou une maison à étage, l’absence de garage vous permettra également d’agrandir la surface de votre jardin.

Télécharger gratuitement nos plans de maison sans garage

Lorsque vous téléchargez gratuitement l’un de nos plans de maison sans garage, vous accédez à une fiche technique qui vous fournit toutes les informations nécessaires pour réaliser votre projet. Vous y trouverez notamment des détails sur la surface habitable et sur la répartition des pièces. Cette fiche technique constitue une ressource précieuse pour vous aider dans l’aménagement intérieur de votre future maison et vous guider dans vos choix. En éliminant le garage de l'équation, vous pouvez créer une maison qui répond pleinement à vos besoins et à vos préférences, tout en économisant sur le prix de votre construction de maison. En analysant attentivement vos besoins, votre terrain et votre budget, vous pourrez déterminer si une maison sans garage correspond à votre style de vie et à vos aspirations en matière de construction résidentielle. Nos équipes Maisons Ericlor, spécialistes de la construction de maisons sur-mesure, se tiennent à votre disposition pour vous conseiller dans votre choix.

Vous hésitez entre une maison sans garage ou une maison avec garage ? 

Découvrez nos autres plans de maisons avec un garage ou avec un double garage :


Ce plan de maison vous inspire ?

Pour débuter votre projet, inspirez-vous de nos plans de maison en téléchargement.

Les champs marqués(*) sont obligatoires.