Offre spéciale

- 3 000€ sur vos frais de notaire

Plans de maisons de 90m² à télécharger

Vous envisagez la construction d’une maison d’une surface habitable de 90m² ? Excellente idée ! Les plans de maisons d’une surface de 90m² ont beaucoup d’avantages. Pour trouver l’inspiration, Maisons Ericlor, constructeur de maisons sur-mesure, vous invite à télécharger gratuitement plusieurs plans de maisons de 90m².

7 plans de maison correspondent à votre recherche

Surface habitable de 90m² à 99m²

vos filtres

Pourquoi choisir un plan de maison de 90m² ?

Le choix de la surface habitable de votre maison est une décision importante à prendre dans le cadre d'un projet de construction. Il est recommandé de déterminer la surface habitable relativement tôt dans le processus de conception, car cela influencera de nombreux aspects de votre plan de maison. Ainsi, avant même de commencer à concevoir les plans détaillés de votre maison, ayez une idée générale de la taille que vous souhaitez. Pensez à vos besoins actuels et futurs, aux attentes de votre famille, et à tout autre facteur qui pourrait influencer la taille de la maison (nombre de chambres, nombre de salle de bains, cellier, garage, etc.). Maison moderne, maison traditionnelle ou maison contemporaine, les plans de maisons de 90m² vous permettent de bénéficier d’un espace à la fois pratique et esthétique. Un plan de maison de 90m² offre une surface suffisamment spacieuse pour accueillir toute votre famille. Maisons Ericlor est un constructeur de maisons sur-mesure. Cela signifie que nous pouvons personnaliser vos plans favoris selon vos goûts, votre style de vie et votre budget. Disposition des pièces, design intérieur, finitions extérieures… donnez libre court à votre imagination !

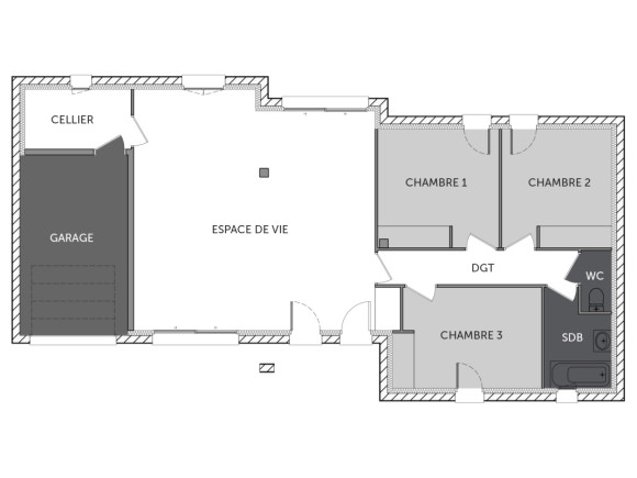
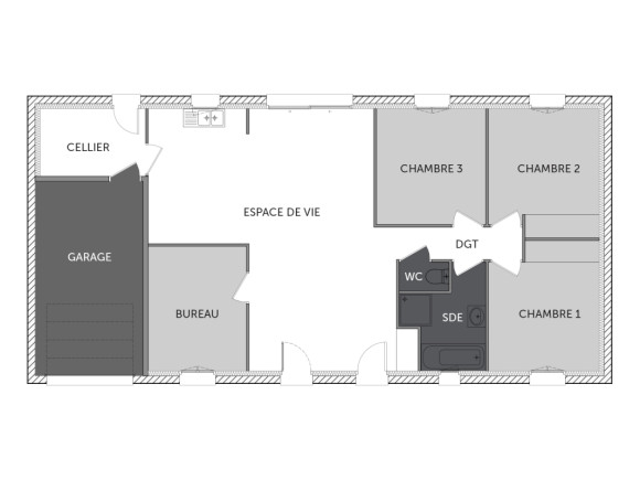
Préférez-vous un plan de maison de plain-pied ou à étage ?

Le plan de maison de 90m² s’adapte aussi bien à un modèle de maison à étage qu’à un modèle de maison de plain-pied. Découvrez par exemple le plan de maison « HOSTAY » d’une surface de 93m². Conçue en forme de « H », ce plan de maison de plain-pied s’organise autour de la pièce à vivre. La disposition atypique des pièces permet de supprimer la quasi-totalité des dégagements et d’optimiser la surface habitable. Grâce à ses grandes baies vitrées de part et d’autre du salon, ce plan contemporain est idéal pour les personnes à la recherche de luminosité. Vous envisagez plutôt la construction d’une maison à étage ? Craquez pour le plan de maison « NAPLES ». Cette maison traditionnelle à étage de 95 m² offre au rez-de-chaussée, un grand espace de vie avec cuisine, cellier et garage. A l'étage, un palier dessert deux chambres, une salle de bains et un dressing. Vous disposez d’un petit terrain ? Sachez que les plans de maison à étage d’une surface de 90 m² s’adaptent plus facilement à des petits terrains que les plans de maison de plain-pied. Si vous n’avez pas encore trouvé votre terrain, explorez toutes nos offres terrain+maison disponibles sur votre secteur géographique. Nos équipes Maisons Ericlor vous accompagnent depuis la recherche du terrain idéal jusqu’à la livraison de votre maison neuve.

Découvrez nos autres surfaces de plans de maisons

Vous hésitez à choisir un plan de maison de 90m² ? Pour vous aider à faire votre choix, Maisons Ericlor vous invite à parcourir d’autres plans de maisons avec d’autres surfaces habitables. 80m², 100m², 150m, 200m²… le champ des possibles est vaste !

 

Pour la réalisation de votre plan de maison, il est indispensable d’être accompagné par un constructeur de confiance. Maisons Ericlor est votre partenaire tout au long de votre projet de construction. Ensemble, nous concevons un plan de maison adapté à votre style de vie et à votre budget. Prenez rendez-vous dans l’une de nos agences pour démarrer votre projet de construction en toute confiance !


Ce plan de maison vous inspire ?

Pour débuter votre projet, inspirez-vous de nos plans de maison en téléchargement.

Les champs marqués(*) sont obligatoires.