Plans de maisons de 150m² à télécharger

Téléchargez gratuitement nos plans de maisons d’une surface de 150 m² et trouvez l’inspiration pour votre future maison neuve. Maisons Ericlor, constructeur de maisons sur-mesure, vous accompagne dans la réalisation d’un plan adapté à vos besoins, aux spécificités de votre terrain et à votre budget.

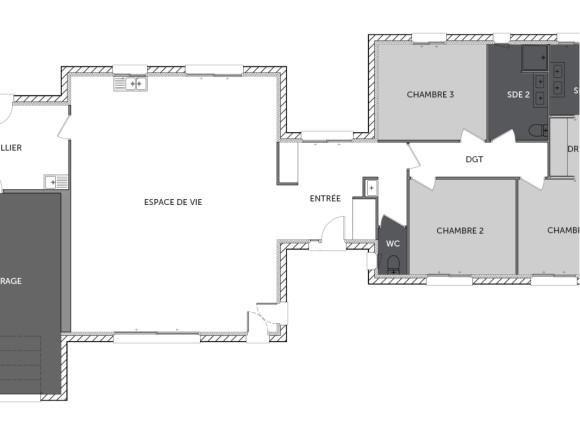
4 plans de maison correspondent à votre recherche

Surface habitable de 150m² à 159m²

vos filtres

Nos plans de maisons de 150 m²

Une maison de 150 m² offre des volumes généreux pour accueillir toute votre famille. Vous pouvez aisément disposer de 4 chambres, de plusieurs salles de bains, d’une cuisine spacieuse, d’une pièce à vivre confortable et d’un garage. Avec une surface habitable de 150 m², vous pouvez laissez libre court à votre imagination pour la disposition des pièces. Vous pouvez inclure des espaces supplémentaires tels qu’un bureau, une salle de jeux, une buanderie ou un cellier, en fonction de vos besoins spécifiques. Les espaces de vie bénéficient de surfaces spacieuses, ce qui peut contribuer à un confort de vie plus agréable. Parcourez nos différents modèles de plans de maisons de 150 m² et trouvez des idées pour concevoir un plan qui vous ressemble. Maisons Ericlor est un constructeur de maisons sur-mesure. Cela signifie qu’à partir d’une esquisse ou de vos attentes, nous réaliserons un plan unique, comme vous.

Maison de plain-pied ou maison à étage ?

Maisons Ericlor vous propose aussi bien des maisons de plain-pied de 150 m² que des maisons à étage de 150m². Au-delà de vos préférences personnelles, il s’agira surtout de trouver l’équilibre entre la surface au sol de votre maison et la taille de votre terrain et ainsi conserver un confortable jardin. Nos équipes vous apporteront leurs meilleurs conseils sur cette problématique. Pour vous aider dans votre recherche, Maisons Ericlor vous présente deux modèles de plans de maisons plébiscités par nos clients. D’une surface de 150 m², le modèle de plan de maison « DUBAÏ » est apprécié pour ses grands volumes. Son jeu de toiture, toit terrasse et toit monopente, confère à cette maison une ligne architecturale design. Très contemporaine, cette maison de plain-pied favorise une circulation fluide entre toutes les pièces de la maison. Sur un seul et même niveau, cette maison propose un grand salon-séjour avec cuisine ouverte, 3 chambres dont une chambre parentale, 2 salles de bains et un garage. Découvrez également le plan de maison « MONTIGNAC ». D’une surface de 150 m², cette maison traditionnelle à étage propose au rez-de-chaussée une pièce de vie baigné de lumière, une chambre avec salle d’eau, un cellier et un garage. L’étage dessert l’espace nuit avec 3 chambres dont une suite parentale et une salle de bain. Ce type de plan offre des espaces généreux pour répondre aux besoins de tous les membres de la famille. Maison moderne, traditionnelle ou d’architecte, faites votre choix parmi nos nombreux plans de maisons de 150 m².

Quelle surface habitable choisir ?

Vous vous questionnez sur la surface habitable ? Faites le point sur vos besoins, vos préférences en termes d’espace et de confort, et votre budget. Maisons Ericlor vous propose des plans de maisons de 80m², 90m², 100m², 200m² et plus. Vous avez l’embarras du choix. Parcourez nos plans de maisons, téléchargez vos plans favoris et trouvez le plan qui vous ressemble.   

Maisons Ericlor, votre partenaire de confiance

Constructeur de maisons sur-mesure, Maisons Ericlor vous accompagne dans la réalisation de votre projet de construction. Avant même la réalisation des plans de votre maison, nos équipes peuvent vous accompagner dans la recherche de votre terrain idéal. Découvrez toutes nos offres de terrain disponibles sur notre site internet. Une fois votre terrain trouvé, nous réaliserons les plans de votre maison et nous pourrons démarrer le chantier de votre maison. Maisons Ericlor vous accueille dans l’une de ses 12 agences réparties sur tout l’Ouest de la France. Rencontrez nos équipes dans l’agence la plus proche de votre projet de construction de maison. Nos conseillers seront heureux de répondre à toutes vos questions, vous conseiller sur votre projet de construction et pourquoi pas vous établir un premier devis. Prenez rendez-vous dans l’une de nos agences pour concrétiser votre rêve de maison neuve ! A bientôt.


Ce plan de maison vous inspire ?

Pour débuter votre projet, inspirez-vous de nos plans de maison en téléchargement.

Les champs marqués(*) sont obligatoires.