Plans de maisons avec 3 chambres à télécharger

Découvrez nos plans de maison avec 3 chambres. Très appréciée, cette configuration de maison répond aux besoins du plus grand nombre, autant les couples avec ou sans enfants que les retraités. Les plans de maison avec 3 chambres ont la particularité d’être parfaitement optimisés. Pour vous aider dans votre projet de construction, Maisons Ericlor, constructeur de maison sur-mesure, met à votre disposition de nombreux plans de maisons avec 3 chambres à télécharger gratuitement.

23 plans de maison correspondent à votre recherche

3 chambre(s)

vos filtres

Faire construire une maison avec 3 chambres

Les plans de maison avec 3 chambres sont les plus demandés par nos clients. Un plan de maison avec 3 chambres offre de nombreux avantages pour les occupants de la maison. La chambre principale est généralement réservée aux propriétaires de la maison et les chambres supplémentaires sont polyvalentes. Par exemple, la troisième chambre peut servir de chambre d'amis lorsque des invités viennent séjourner, ce qui évite d'avoir à utiliser le canapé ou d'autres espaces temporaires pour les héberger. Elle peut aussi être utilisée comme espace dédié aux hobbies, aux loisirs, ou comme bureau à domicile, offrant ainsi un endroit tranquille pour travailler ou se détendre. Maisons Ericlor vous propose une large sélection de plans de maison avec 3 chambres pour vous inspirer. Vous avez l’embarras du choix.

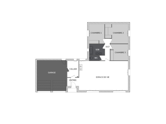
Plan de maison avec 3 chambres de plain-pied ou à étage

Les plans de maison avec 3 chambres peuvent être de plain-pied ou à étage. Les chambres peuvent être disposées de différentes manières. Parmi les modèles de maison les plus appréciés par nos clients, le modèle « Chambray » est une maison traditionnelle de plain-pied d’une surface habitable de 100 m². Elle se compose d’une grande pièce de vie lumineuse et d’un espace de nuit desservant les 3 chambres et une salle de bains. Un garage et son cellier attenant complètent cette maison traditionnelle. Le modèle « Berthenay » est idéal sur un terrain plus petit grâce à son emprise au sol moins importante. Cette maison moderne à étage dissocie l’espace de vie de l’espace nuit. Au rez-de-chaussée, vous disposez d’un salon-séjour avec une cuisine ouverte. L’étage dessert une salle de bains et 3 chambres, dont une suite parentale avec salle d’eau. Autre option envisageable, la maison à étage avec une suite parentale au rez-de-chaussée et deux chambres à l’étage. Le modèle « Ottawa » propose au rez-de-chaussée une grande pièce de vie, une cuisine ouverte, un double garage, ainsi qu’une « master-bedroom » avec des dressings généreux. A l’étage, les deux chambres s’articulent autour d’une passerelle. L’architecture contemporaine de cette maison, d’une surface habitable de 200m², saura vous séduire. Quel que soit le type de plan de maison avec 3 chambres que vous choisirez, cette configuration cherchera généralement à optimiser l'utilisation de l'espace, en proposant une circulation fluide entre les pièces et en créant une atmosphère conviviale et accueillante. Laissez-vous inspirer par l’un de nos modèles de plan avec 3 chambres.

Découvrez nos plans de maison avec 2 chambres ou avec 4 chambres

Le choix du nombre de chambres dépend des besoins et des préférences de chaque famille. Certaines familles peuvent avoir besoin de plus d'espace, tandis que d'autres peuvent se satisfaire de moins. Certaines peuvent préférer une maison de plain-pied traditionnelle alors que d’autres rêvent d’une maison à étage contemporaine. L'important est de concevoir un plan qui répond aux besoins spécifiques de votre famille, à votre style de vie et à vos goûts. Réfléchissez à votre situation familiale actuelle et future. Avez-vous besoin de plus d'espace pour une famille en expansion ou pour accueillir des invités ? Avez-vous besoin d'un espace supplémentaire pour des passe-temps ou pour travailler à domicile ? Assurez-vous que le plan et les dimensions des pièces répondent à vos besoins actuels et futurs. Découvrez nos plans de maisons avec 2 chambres ou 4 chambres à télécharger gratuitement pour confirmer votre projet de construction.

Quels que soient vos besoins et votre style de vie, nous avons le plan de maison qui vous ressemble. Nos équipes Maisons Ericlor, constructeur de maison individuelle sur-mesure, se tiennent à votre disposition pour vous conseiller sur votre projet de construction. Nous adapterons nos modèles de plan en fonction de vos attentes et de vos contraintes budgétaires. Nous vous donnons la possibilité de construire une maison sur-mesure traditionnelle, moderne ou contemporaine. Le champs des possibles est illimité pour votre projet de construction !


Ce plan de maison vous inspire ?

Pour débuter votre projet, inspirez-vous de nos plans de maison en téléchargement.

Les champs marqués(*) sont obligatoires.