Offre spéciale

- 3 000€ sur vos frais de notaire

Plans de maisons à étage à télécharger

Vous souhaitez faire construire une maison avec un étage ? Vous êtes au bon endroit ! Maisons Ericlor, constructeur de maisons individuelles sur-mesure, vous propose de télécharger gratuitement un ou plusieurs plans de maisons avec un étage. Découvrez ces modèles de plans de maison - moderne, traditionnelle ou d’architecte – avec un étage et inspirez-en vous pour votre projet de construction de maison neuve. Nos équipes se tiennent à votre disposition pour personnaliser vos modèles de plan favoris selon vos besoins, vos préférences et votre style de vie.

40 plans de maison correspondent à votre recherche

Étage

vos filtres

Les avantages d’un plan de maison avec un étage

  • Optimisation de l’espace de la maison

Les plans de maison à étage présentent de nombreux avantages. Un plan de maison à étage permet de maximiser l'utilisation de l'espace en construisant verticalement sur le terrain. Cela est particulièrement avantageux sur les terrains plus petits, où une construction à étage peut offrir une plus grande surface habitable sans occuper une grande empreinte au sol. Par exemple, notre modèle de plan de maison à étage « Boussay » s’adaptera parfaitement à un petit terrain tout en offrant une surface habitable très confortable. « Boussay » est un plan traditionnel de maison avec étage de 90 m² composé, au rez-de-chaussée, d’une grande pièce de vie avec cuisine ouverte, d’un garage, et à l’étage, de trois chambres et de deux salles de bains. Ce type de plan de maison avec étage est intéressant si vous disposez d’un terrain de petite surface.

  • Architecture dynamique

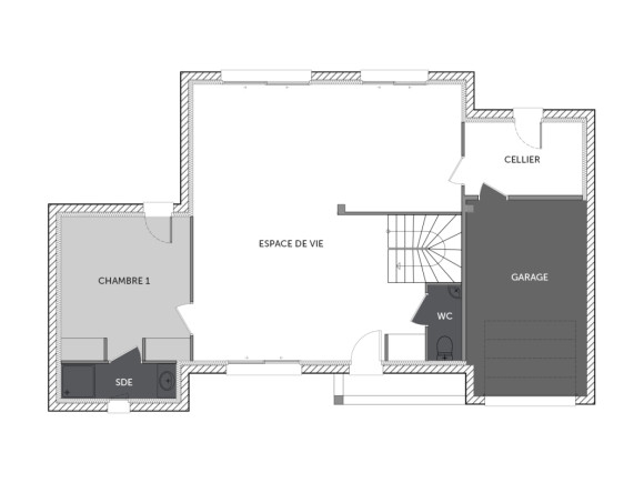
Les plans de maison avec étage présentent une apparence architecturale dynamique. Avec plusieurs niveaux, ce type de maison offre des jeux de volumes et des façades variées. Que votre maison à étage soit plutôt moderne, traditionnelle ou contemporaine, son architecture à plusieurs niveaux la rendra visuellement attrayante. Dans un style contemporain, notre modèle de plan de maison à étage « Nagoya » offre une distribution harmonieuse des pièces - suite parentale avec salle de bain, pièce de vie et garage au rez-de-chaussée et trois chambres à l’étage - ainsi que des finitions modernes qui en font une maison à la fois fonctionnelle et esthétiquement plaisante. Découvrez en détails le plan de cette maison d’une surface habitable de 127 m². Le modèle de plan de maison avec un étage « Toronto » répondra à vos envies de maison traditionnelle et familiale. Avec ses trois chambres, son espace de vie baigné par une lumière traversante, son bureau transformable en chambre, sa salle de bain, son cellier et son grand garage, ce plan de maison avec étage propose une répartition intelligente des pièces et des volumes spacieux.

  • Distribution des pièces de la maison

Les étages permettent de délimiter clairement les pièces, ce qui peut rendre l'organisation intérieure plus facile. Par exemple, les pièces de vie peuvent être situées au rez-de-chaussée tandis que les chambres sont situées à l'étage, créant ainsi une séparation entre les activités de jour et de nuit. Séparées des espaces communs tels que le salon, la cuisine et la salle à manger, les chambres et la salle de bain à l'étage offrent une plus grande intimité.

  • Maison avec vue panoramique

Si votre terrain offre une vue dégagée ou un panorama intéressant, un plan de maison avec un étage vous permettra de mieux en profiter depuis les étages supérieurs. Imaginez intégrer à votre plan de maison à étage une terrasse en hauteur, accessible depuis votre chambre, où vous pourriez admirer le paysage. C’est le cas de notre modèle de maison moderne à étage « Montignac » qui dispose d’un grand balcon extérieur accessible depuis deux chambres. Découvrez en détails le plan de cette maison contemporaine d’une surface habitable de 150 m².

Vous hésitez entre un plan de maison à étage et un plan de maison de plain-pied ?

Avant la construction de votre maison, la question du nombre de niveaux est inévitable. Entre un plan de maison de plain-pied ou un plan de maison avec un étage, votre cœur balance. Maisons Ericlor, constructeur de maisons sur-mesure, vous accompagne dans votre choix de niveaux en vous présentant les caractéristiques de chaque type de plan de maison. Découvrez nos plans de maisons de plain-pied modernes, traditionnelles ou contemporaines, et leurs avantages en détails en cliquant sur le lien ci-dessous.

Faites construire votre maison avec un étage avec Maisons Ericlor

Les plans de maison avec un étage plaisent énormément en raison de leur architecture attrayante, leur optimisation de l'espace, leur disposition des pièces, leur vue panoramique, etc. Pour votre projet de construction de maison avec un étage, contactez nos équipes Maisons Ericlor, constructeur de maison individuelle depuis plus de 30 ans. Notre expertise et notre savoir-faire nous permettent de vous proposer des maisons sur-mesure, haut-de-gamme et de qualité. Inspirez-vous de nos plans de maison traditionnelle, moderne et contemporaine et concevons ensemble un plan unique qui vous ressemble. A très bientôt dans nos agences Maisons Ericlor pour votre projet de construction !


Ce plan de maison vous inspire ?

Pour débuter votre projet, inspirez-vous de nos plans de maison en téléchargement.

Les champs marqués(*) sont obligatoires.