Offre spéciale
- 3 000€ sur vos frais de notaire
Club Villadim
Maisons de Qualité
Avis Immodvisor
vos filtres
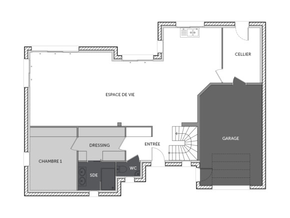
150 m2
4 ch
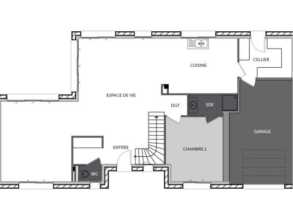
117 m2
3 ch
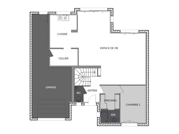
148 m2
135 m2
Maison RE2025
Depuis le 1er janvier 2025, les exigences environnementales pour les maisons neuves se sont renforcées.
138 m2
107 m2
144 m2
93 m2
145 m2
95 m2
2 ch
Ce plan de maison vous inspire ?
Pour débuter votre projet, inspirez-vous de nos plans de maison en téléchargement.
Les champs marqués(*) sont obligatoires.